| Název: | INNSBRUCK 145 |
| Kategorie: | Projekty dřevostaveb - katalog dřevostaveb na klíč |
| Společnost: | WOLF SYSTEM, s.r.o. |
| Počet podlaží: | vícepodlažní |
| Konstrukční systém: |
|
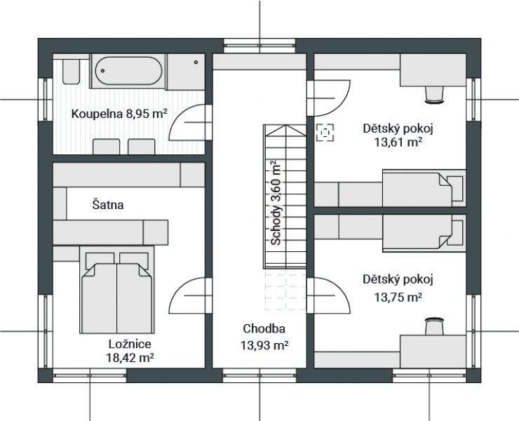
| Podlahová plocha (užitná): | 145,00 m² |
| Zastavěná plocha: | 90,00 m² |
| Dispozice: | 4+kk / 4+1 |
Aktuální ceny naleznete na stránkách, případně na dotaz u prezentované společnosti.
Velkorysý a moderní patrový dům Innsbruck 145 s pultovou střechou spojuje eleganci s funkčností a dokonale vyhovuje požadavkům na komfortní bydlení ve městě i na venkově. Jeho promyšlený design zdůrazňuje vzdušnost a propojení s venkovním prostorem, čímž výrazně zvyšuje kvalitu každodenního života.
Díky promyšlenému uspořádání, prostorným místnostem a plynulému napojení na zahradu je Innsbruck 145 ideální volbou pro rodiny hledající stylové, komfortní a energeticky úsporné bydlení.
Interiér se vyznačuje moderním pojetím, vysokými standardy a nadčasovým designem, který splní očekávání i těch nejnáročnějších klientů. Čisté linie, pečlivě zvolené prvky, vzdušné a prosvětlené místnosti i propojení se zahradou zvětší váš životní prostor a vytvoří harmonický domov, kde si každý najde své místo k odpočinku i každodennímu životu.
|
Oznámkujte |
Oblíbené: 0 |
|
LUCERN 116 - dřevostavba na klíč
LUCERN dřevostavby s.r.o.
Užitná plocha: 103.1 m²
Dispozice: 4+kk / 4+1
Optimal 02 - dřevostavba na klíč
PENATUS s.r.o.
Užitná plocha: 124 m²
Dispozice: 4+kk / 4+1
Dům se sloupy z douglasky
ARCHCON atelier, s.r.o., DŘEVOSTAVBY BISKUP, s.r.o.
Užitná plocha: 118.44 m²
Dispozice: 4+kk / 4+1
Moderní roubenka v trampské osadě
OK PYRUS, s.r.o.
Užitná plocha: 117 m²
Dům venkovského stylu
EKOPANELY SERVIS s.r.o.
Užitná plocha: 153 m²
Dispozice: 4+kk / 4+1
Chata v Jizerských horách - dřevostavba na klíč
3AE s.r.o.
EKONOMY MS 04 - dřevostavba na klíč
MS HAUS s.r.o.
Užitná plocha: 85 m²
Dispozice: 4+kk / 4+1
RD Mnichovice
EKOPANELY SERVIS s.r.o.
Užitná plocha: 124.3 m²
Dispozice: 3+kk / 3+1
Pavo 111 - dřevostavba na klíč
A T R I U M, s.r.o.
Užitná plocha: 111.03 m²
Dispozice: 5+kk / 5+1
Ekologická dřevostavba
EKOPANELY SERVIS s.r.o.
Užitná plocha: 128 m²
Dispozice: 3+kk / 3+1
Lesníkova roubenka
EKOPANELY SERVIS s.r.o.
Užitná plocha: 260 m²
Dispozice: 5+kk / 5+1
Rodinný dům 307 - dřevostavba na klíč
PILA MARTINICE s.r.o.
Užitná plocha: 130 m²
Dispozice: 5+kk / 5+1
Rodinný dům Tábor - dřevostavba na klíč
ALFAHAUS s.r.o.
Užitná plocha: 137 m²
Dispozice: 4+kk / 4+1
Nízkoenergetická dřevostavba
EKOPANELY SERVIS s.r.o.
Užitná plocha: 115 m²
Dispozice: 4+kk / 4+1
Futura Freestyle - dřevostavba na klíč
Prodesi I Domesi
Užitná plocha: 107.8 m²
Dispozice: 3+kk / 3+1
Proč jste na portále DŘEVO&stavby?
Copyright © 2026 Českobrodská 35, 190 12 Praha 9 - Dolní Počernice Kontakt
