| Název: | PLANUM 102 |
| Kategorie: | Projekty dřevostaveb - katalog dřevostaveb na klíč |
| Společnost: | WOLF SYSTEM, s.r.o. |
| Charakteristika domu: |
|
| Počet podlaží: | jednopodlažní |
| Konstrukční systém: |
|
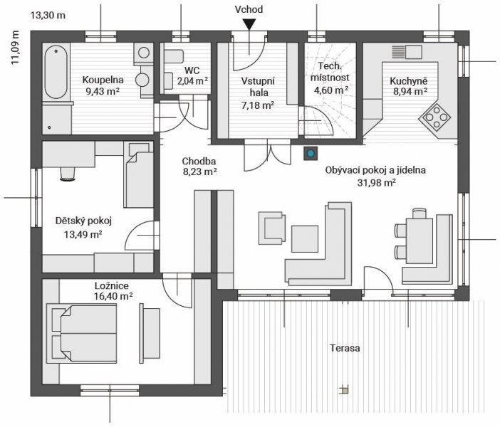
| Podlahová plocha (užitná): | 102,00 m² |
| Zastavěná plocha: | 123,00 m² |
| Dispozice: | 3+kk / 3+1 |
Aktuální ceny naleznete na stránkách, případně na dotaz u prezentované společnosti.
Planum 102 je elegantní a praktický bungalov ve tvaru písmene L, který nabízí promyšlenou dispozici 3+kk. Díky světlým a prostorným místnostem si zamilujete jeho vzdušnost a pohodlí.
Tento bungalov s užitnou plochou 102 m² a zastavěnou plochou 126 m² je perfektní volbou pro rodiny hledající moderní, energeticky úsporné bydlení s dostatkem prostoru uvnitř i venku. Uspořádání lze snadno přizpůsobit, například na 4+kk nebo 2+kk.
Díky svému jednoduchému, stylovému a variabilnímu designu je Planum 102 domem, který se přizpůsobí vašim potřebám i budoucím plánům. Díky absenci schodů je ideální nejen pro rodiny s malými dětmi, ale i pro seniory, kteří ocení bezbariérový přístup.
|
Oznámkujte |
Oblíbené: 0 |
|
Ekologická dřevostavba
EKOPANELY SERVIS s.r.o.
Užitná plocha: 128 m²
Dispozice: 3+kk / 3+1
Lesníkova roubenka
EKOPANELY SERVIS s.r.o.
Užitná plocha: 260 m²
Dispozice: 5+kk / 5+1
EKONOMY MS 04 - dřevostavba na klíč
MS HAUS s.r.o.
Užitná plocha: 85 m²
Dispozice: 4+kk / 4+1
Rodinný dům Tábor - dřevostavba na klíč
ALFAHAUS s.r.o.
Užitná plocha: 137 m²
Dispozice: 4+kk / 4+1
Dům se sloupy z douglasky
ARCHCON atelier, s.r.o., DŘEVOSTAVBY BISKUP, s.r.o.
Užitná plocha: 118.44 m²
Dispozice: 4+kk / 4+1
Nízkoenergetická dřevostavba
EKOPANELY SERVIS s.r.o.
Užitná plocha: 115 m²
Dispozice: 4+kk / 4+1
LUCERN 116 - dřevostavba na klíč
LUCERN dřevostavby s.r.o.
Užitná plocha: 103.1 m²
Dispozice: 4+kk / 4+1
Pavo 111 - dřevostavba na klíč
A T R I U M, s.r.o.
Užitná plocha: 111.03 m²
Dispozice: 5+kk / 5+1
Rodinný dům 307 - dřevostavba na klíč
PILA MARTINICE s.r.o.
Užitná plocha: 130 m²
Dispozice: 5+kk / 5+1
Dům venkovského stylu
EKOPANELY SERVIS s.r.o.
Užitná plocha: 153 m²
Dispozice: 4+kk / 4+1
Bennet
KANADSKÉ SRUBY TÁBOR, s.r.o.
Užitná plocha: 177 m²
Dispozice: 5+kk / 5+1
Futura Freestyle - dřevostavba na klíč
Prodesi I Domesi
Užitná plocha: 107.8 m²
Dispozice: 3+kk / 3+1
RD Mnichovice
EKOPANELY SERVIS s.r.o.
Užitná plocha: 124.3 m²
Dispozice: 3+kk / 3+1
Chata v Jizerských horách - dřevostavba na klíč
3AE s.r.o.
Optimal 02 - dřevostavba na klíč
PENATUS s.r.o.
Užitná plocha: 124 m²
Dispozice: 4+kk / 4+1
Proč jste na portále DŘEVO&stavby?
Copyright © 2026 Českobrodská 35, 190 12 Praha 9 - Dolní Počernice Kontakt
