DAS | Neděle, 27. listopad 2016 |
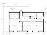
Dvoupatrová roubenka v moderním duchu je navržena z lepených pohledových trámů o rozměru 235 × 235 mm, příčky jsou roubené o tloušťce 114 mm, strop nad přízemím tvoří pohledové masivní trámy 200 × 240 mm zaklopené podlahovou palubkou. Celý krov je z interiéru podkroví pohledový. Do okolní krajiny dům dokonale zapadá a dokresluje jedinečnou scenérii pozdních letních večerů.
Nadstandardně zařízený interiér doplňuje vůně dřeva, a dělá tak z této dřevostavby opravdu domov postavený "od kořenů k bydlení", jak hlásí slogan firmy NEMA, která dům realizovala. Roubenka je navržena jako nízkoenergetický rodinný dům a navíc využívá tepelného čerpadla. Splňuje požadavky třídy energetické náročnosti budovy skupiny B. Jedná se tedy o velmi úspornou dřevostavbu.














Vytvořeno v xart.cz