Komerční sdělení | Středa, 16. únor 2022 |
Jednou z hlavních specializací firmy Pineca.cz je bezesporu realizace montovaných, dřevěných chat určených k celoročnímu i rekreačnímu využití. Právě v této kategorii nabízejí široké spektrum typových chat a domků za rozumnou cenu.
V sekcích zahradní domky a dřevěné chaty a domy naleznete na webu Pineca.cz celou řadu produktů, které se výborně hodí pro sezónní i celoroční využití, přičemž všechny produkty dodávají ve variantě s šířkou stěny 44 mm, 66 mm a 44+44 mm.
V rámci inzerované ceny zákazník vždy obdrží impregnované latě pro základový rám, frézované fošny pro stavbu všech stěn, nosné prvky pro konstrukci krovu, palubky pro záklop podlahy a střechy, výplně otvorů a montážní dokumentaci. Každý klient si tedy může snadno vybrat způsob provedení stavby, který přesně vyhovuje jeho plánovanému způsobu užívání.
Zahradní domky se stěnou 44 mm doporučují spíše pro sezónní využití, zatímco chata se sílou stěny 66 mm, zateplenou střechou a podlahou již zcela vyhovuje k celoroční rekreaci. Pro trvalé bydlení je ideální varianta chaty s dvojitou stěnou nebo vnějším zateplením a fasádou z dřevěného obkladu stejně jako tomu bylo u realizace montované chaty nedaleko Týna nad Vltavou.
Nespornou výhodou stavebního systému firmy Pineca.cz je snadná a rychlá montáž, do níž se již mnoho jejich zákazníků pustilo svépomocí. Vždy se samozřejmě mohli spolehnout na bezplatnou technickou podporu. Pokud z jakéhokoliv důvodu nechcete montáž provádět sami, nabízejí možnost realizace některým z jejich montážních týmů.
Díky širokému sortimentu a možnosti modifikovat typové produkty dle přání zákazníků je firma Pineca.cz takřka každému schopna nabídnout cenově dostupnou dřevostavbu, v níž si budete moci dopřát zasloužené pohodlí za každého počasí.
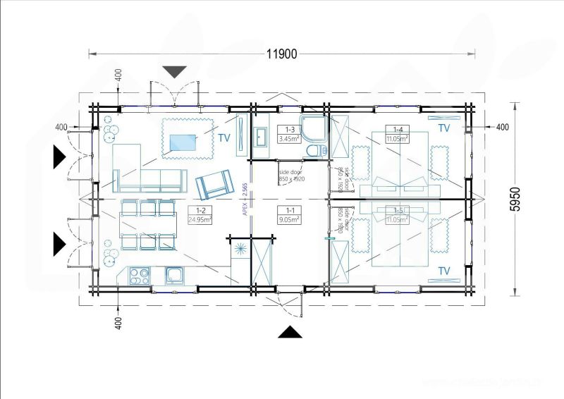
Technické parametry montované chaty Anica
-
Cena: 932 900 Kč
- Plocha: 71 m²
- Materiály: Certifikovaná severská borovice nebo smrk
- Vnější rozměry: 1190 cm x 595 cm
- Tloušťka stěny: 44 +44 mm
- Výška okapní hrany: 222,75 cm
- Výška hřebene: 357,75 cm
- Materiál zastřešení: Palubky 19 - 20 mm
- Materiál podlahy: Palubky 19 - 20 mm
- Plocha střechy: 93 m²
- Přesah střechy: 40 cm
- Počet místností: 5
- Dveře: 3* 159 cm x 185 cm; 4* 85 cm x 185 cm
- Okna: 5* 138 cm x 105 cm; 1* 70 cm x 105 cm; 2* 70 cm x 192 cm
- Střešní krytina: Volitelná - není součástí dodávky
- Povrchová ochrana dřeva: Aplikovaná při montáži - není součástí dodávky
- Sklon střechy: 25.3°
Více informací o dřevěné montované chatě Anica→
Realizace montované chaty Anica nedaleko Týna nad Vltavou
Na jaře roku 2021 realizovala firma Pineca.cz výstavbu celoroční chaty Anica v rekreační oblasti nedaleko Týna nad Vltavou. Stavba byla usazena na dobře připravenou základovou desku, u níž je zejména u dřevostaveb důležitá její absolutní rovnost.
Přáním zákazníků bylo, aby mohli tento dřevěný bungalov využívat především v létě, ale zároveň chtěli mít možnost strávit v chatě i zimní dovolenou. Volba nakonec padla na provedení dřevostavby s šířkou stěny 66 mm, střechou zateplenou 20 cm minerální vaty a do podlahy bylo instalováno 10 cm sypaného polystyrenu. Antracitová plechová střecha imitující pálené tašky, dřevěná fasáda ošetřená bílou olejovou lazurou, okna a dveře natřené antracitovou barvou dodaly celé stavbě opravdu nezaměnitelný vzhled.
Autor videa: se souhlasem MJ Products s.r.o., Zdroj videa: Oficiální YouTube kanál Pineca.cz























Vytvořeno v xart.cz