Markéta Kristová | Pátek, 20. květen 2022 |
Vybrali jsme pro vás projekty typových dřevostaveb, které splňují vysoké nároky stavebníků, a to především na kvalitní zpracování, dostatek úložného prostoru, rychlou dodávku a možnosti si dům upravit podle vlastních představ.
Pokud se při výběru svého bydlení rozhodnete pro typový dům máte oproti individuálnímu návrhu domu náskok v hotové projektové dokumentaci a možnosti si ve většině případů již realizovaný dům podle daného projektu prohlédnout. Díky kompletnímu zpracování můžete ušetřit nemalé peníze, a to i v případě, že budete požadovat typový projekt upravit dle svých přání. Na typový dům dostanete díky předem připravenému a schválenému projektu také mnohem rychleji stavební povolení. Celkový proces realizace se tak celkově velmi zrychlí a vy budete moct brzy bydlet v novém domě.
Dům Racio – typová dřevostavba na klíč pro mladou rodinu i starší manželský pár
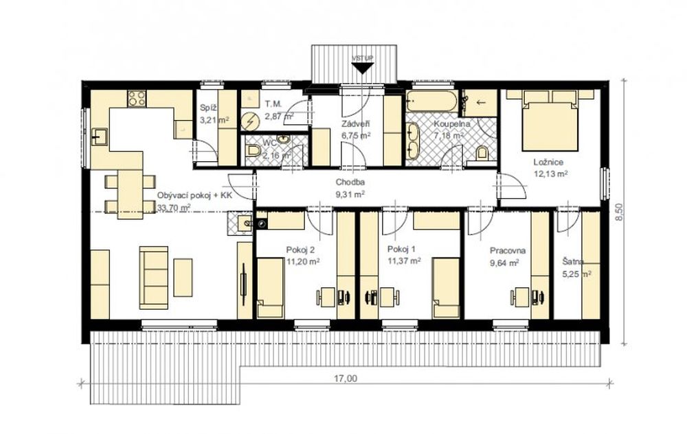
- Dům RACIO je určen jak pro mladé rodiny, kteří potřebují prostor pro své děti. Zároveň je velmi vhodný pro samostatně žijící manžele, kteří touží po svém soukromí, místě pro koníčky a prostoru pro návštěvy. Pokoje jsou umístěny v klidové části domu s výhledem do zahrady nebo předzahrádky.
- RACIO je dům, který Vám nabídne mnoho úložných prostorů a přiměřeně velké pokoje. Jedna z předností domu, kterou ocení především ženy je spíž do které se vstupuje přímo z kuchyně. Dále pak prostorné zádveří s vestavnou skříní s místem pro botník. Kuchyň je navržena účelově s maximálním využitím prostoru.
- Pro příjemný pocit „tepla rodinného krbu" jsou v jídelně umístěna krbová kamna, které dodají teplo celé obývací a kuchyňské části domu. Z obývacího pokoje se vstupuje přímo na zahradní dřevěnou terasu. Pokud je dům umístěn na úzkém pozemku, je možné přesunout francouzské okno do jídelního koutu a získat nádherný výhled přímé do zahrady.
- Technická místnost, do které se vstupuje přímo ze zádveří slouží zároveň jako samostatné WC. V technické místnosti je umístěn bojler, pračka a případně sušička. Zároveň se zde najde dostatek místa pro úklidové prostředky a nářadí na údržbu domu. Koupelna je umístěna v zadní klidové části domu u ložnic. Je vybavena umyvadlem, vanou, toaletou a samostatným sprchovým koutem.
-
Název projektu: Dům RACIO
- Realizace: DOMY D.N.E.S. s.r.o.
- Počet podlaží: jednopodlažní dřevostavba
- Konstrukční systém: panelová dřevostavba
- Podlahová plocha (užitná): 99,00 m²
- Zastavěná plocha: 117,00 m²
- Dispozice: 4+kk / 4+1
- Cena dřevostavby na klíč (bez DPH): 3 820 000 Kč
- Cena včetně základové desky: Ne (lze na přání dodat)
Realizace a zdroj: DOMY D.N.E.S. s.r.o.
Bungalow L 10 – typová dřevostavba na klíč s dostatkem prostoru a zárukou pohodlí
- Bungalow L 10 je ideální pro čtyřčlennou rodinu s potřebou samostatného pracovního prostoru.
- Předností této varianty je samostatná prostorná pracovna a hlavní ložnice s šatnou. Terasa je přístupná z obývacího pokoje, který spolu s kuchyňským koutem tvoří největší místnost v domě.
- Dalším praktickým vybavením je i spíž, která je přímo přístupná z kuchyňského koutu. Fasádu domu lze opticky rozbít barvou nebo dřevěným obkladem, přičemž zapuštěné závětří a zadní část domu se k tomu přímo nabízí. Dům se chlubí velkou koupelnou a technickou místností přístupnou ze zádveří.
- Vzhledem k větší velikosti zastavěné plochy je dům vhodný spíše pro podlouhlé rovinaté pozemky.
- Název projektu: Bungalow L 10
- Realizace: DOMY D.N.E.S. s.r.o.
- Počet podlaží: jednopodlažní dřevostavba
- Konstrukční systém: panelová dřevostavba
- Podlahová plocha (užitná): 115,00 m²
- Zastavěná plocha: 138 m²
- Dispozice: 5+kk / 5+1
- Cena dřevostavby na klíč (bez DPH): 4 630 000 Kč
- Cena včetně základové desky: Ne (lze na přání dodat)
Realizace a zdroj: DOMY D.N.E.S. s.r.o.
Family L 02 – typová dřevostavba na klíč pro velkou rodinu
- Na první pohled zaujme typový dům L 02 svým jednoduchým a logickým uspořádáním vnitřní dispozice, kde bylo pamatováno opravdu na každý detail, jako je například využití prostoru pod schodištěm jako skladu, nebo centrální umístění krbu, který se tak může stát dominantním prvkem interiéru a zároveň co nejúčinněji plnit svou funkci.
- Dům bude vyhovovat i početnější rodině díky své velikosti, a také díky oddělení denní a noční části. V druhém nadzemním podlaží se nachází prostorná ložnice a dva pokoje, samostatné WC a koupelna.
- Dominantním prvkem je vikýř a v něm umístěná francouzská okna. Bylo tak dosaženo nejen lepšího proslunění místností, ale zároveň se zvedla i užitná plocha podkroví.
- Vnější vzhled domu sází na čistotu a jednoduchost v celé své kráse. Dům je vhodný i pro svažité parcely.
- Název projektu: Family L 02
- Realizace: DOMY D.N.E.S. s.r.o.
- Počet podlaží: vícepodlažní dřevostavba
- Konstrukční systém: panelová dřevostavba
- Podlahová plocha (užitná): 115 m2
- Zastavěná plocha: 76 m2
- Dispozice: 5+kk | 5+1
- Cena dřevostavby na klíč (bez DPH): 5 410 000 Kč
- Cena včetně základové desky: Ne (lze na přání dodat)
Realizace a zdroj: DOMY D.N.E.S. s.r.o.
DOMY D.N.E.S. – Ryze česká stavební firma realizující kvalitní dřevostavby
Dodavatelská společnost DOMY D.N.E.S. je ryze českou firmou, která se zabývá dodávkou kvalitních dřevostaveb. Zrealizovala více než 300 rodinných domů po celé České republice. Na přání klienta staví společnost domy na míru nebo podle vlastního katalogu typových domů.
- KONSTRUKČNÍ SYSTÉM: Pro stavbu domu se používá stavební systém DNK. Celostěnové panely jsou vyráběny ve výrobním závodě v Třebíči. Jednotlivé konstrukce domu jsou difuzně otevřené. Dřevěný rám panelu je zhotoven z konstrukčního dřeva KVH a je opláštěn z exteriéru dřevovláknitou deskou se STO fasádním systémem. Z interiéru je panel uzavřen deskou OSB 4 a vyplněn foukanou celulózovou izolací. Veškeré instalace jsou vedeny v instalační předstěně, která umožní rozvody vody, elektřiny a kanalizace bez porušení vzduchotěsnosti domu.
- ZÁRUKA KVALITY: Stavební systém celostěnových panelů je certifikován VVÚD. Společnost má zaveden systém řízení jakosti managementu ISO 9001 a 14000. Firma je certifikovaným členem ADMD a je držitelem certifikátu Dokument národní kvality. Kvalitu těsnosti stavby lze doložit na přání klienta BlowerDoor testem.
- VZOROVÉ DOMY: Po dohodě lze navštívit právě realizované stavby.
- PŮSOBNOST: celá ČR
- SÍDLO FIRMY: Hrotovická – Průmyslová Zóna 169, 674 01 Střítěž, www.domydnes.cz, www.dmk-system.cz
- REALIZOVANÉ A NÁMI NAVŠTÍVENÉ DŘEVOSTAVBY A REFERENCE INVESTORŮ
- REFERENCE investorů všech dosud realizovaných dřevostaveb
















.jpg)
.jpg)
.jpg)
.jpg)
.jpg)
.jpg)
.jpg)
.jpg)
.jpg)
.jpg)
.jpg)
.jpg)



Vytvořeno v xart.cz