Markéta Kristová | Pátek, 25. listopad 2022 |
Hledáte moderní bungalov s nadčasovým designem, který je vhodný i pro menší pozemek? Vybrali jsme pro vás typový projekt dřevostavby LIGHT 03, který splňuje nejen tyto požadavky.
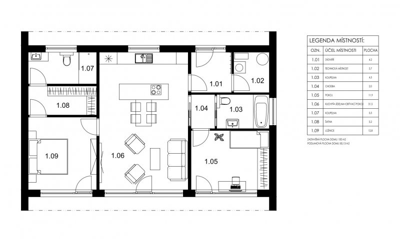
Přízemní typová dřevostavba LIGHT 03 s rovnou či sedlovou střechou je ideální pro menší pozemek. Její hlavní předností je prosklená fasáda, která rozzáří vaše dny. Ideální orientace vzhledem ke světovým stranám je příjezd ze severu a obytné místnosti směrované na jih. Chytrá dispozice zajistí příjemné bydlení, hlavní obytné místnosti tvoří ložnice, pokoj a velkorysý obývák spojený s jídelnou a kuchyňským koutem. Veškeré technické vybavení skrývá místnost k tomu určená hned u vstupu. Tento typ domu může nabídnout i dispoziční variantu s dalším pokojem navíc.
Dobře promyšlená dispozice
Dřevostavba je pomyslně rozdělena na tři části – hlavní ložnice, šatna a koupelna tvoří jednu, obývací pokoj s kuchyňským koutem druhou a vstup s technickou místností, samostatným pokojem a druhou koupelnou část třetí. Právě pokoj u vstupu je možno využít různě – jako pokoj pro hosty, pokoj dětský nebo domácí kancelář. Francouzské okno vpouští do místnosti dostatek světla a zprostředkovává příjemný pohled do zeleně za každého počasí. Zvenku dřevostavba zaujme svým nadčasovým designem a zajímavým detailem na jižní fasádě.
Technické parametry
- Název projektu: LIGHT 03
- Dispozice: 3+kk
- Zastavěná plocha: 100 m2
- Užitná plocha: 85 m2
- Konstrukční systém: panel Goopan Difu
- Projekt a realizace: GOOPAN, Maverick Delta s.r.o., www.goopan.cz
ZASLAT NEZÁVAZNOU POPTÁVKU NA TYPOVÝ DŮM LIGHT 03→
Projekt typové dřevostavby LIGHT 03 byl zveřejněn v aktuálním vydání časopisu DŘEVO&stavby 6/2022 kde bylo chybně uvedeno jméno realizační společnosti. Tímto způsobem se omlouváme za tiskovou chybu.














.jpg)
.jpg)
.jpg)
.jpg)
.jpg)
.jpg)
Vytvořeno v xart.cz