
Po odchodu z Prahy se rozhodli žít v ústraní. Dřevostavba s výhledem na Kutnou Horu se stala ideální volbou
Markéta Kristová | Středa, 04. říjen 2023 |
Dřevostavba pro ně představovala ideální řešení a splňovala přesně to, co po odchodu z Prahy od bydlení očekávali. Jak se majitelům bydlí, jak probíhala realizace a udělali by dnes něco jinak?
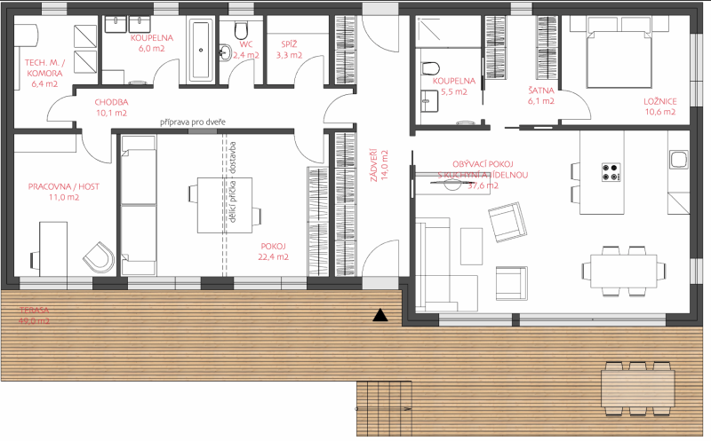
Dům s plochou střechou o velikosti 134 m2 užitné plochy a dispozicí 5+kk nabízí spokojené bydlení pro čtyřčlennou rodinu. Dům je individuálně navržen dle přání majitelů a je tvořen ze dvou částí.
V jedné části se nachází obývací pokoj s kuchyňským koutem a jídelnou. Tento prostor je krásně světlý hlavně díky spoustě velkých oken, ze kterých se vchází na terasu a následně do zahrady. Na obývací pokoj navazuje tzv. rodičovský blok tvořený ložnicí, šatnou a koupelnou rodičů. Tuto část domu a druhou část odděluje dlouhá chodba, která vede skrz celý dům a která je ozvláštněna tapetou s dekorem stromů.
Ve druhé části domu je velký dětský pokoj, který se do budoucna bude rozdělovat na dva dětské pokoje, až děti vyrostou a budou vyžadovat soukromí. Nechybí zde ani druhá koupelna a WC, pokoj pro hosty, spíž a technická místnost. Majitelé mají krásnou a pěstěnou zahradu a protože tento dům stojí na kopci, nabízí tak krásný výhled na Kutnou Horu.
Proč jste se rozhodli pro dřevostavbu?
Když jsme dospěli k rozhodnutí, že chceme opustit Prahu, žít pomaleji, poklidněji a mezi zelení, znamenalo to koupit pozemek a postavit dům. Jen chvíli jsme zvažovali i jiné formy stavby. Nakonec vyhrála dřevostavba, která pro nás představovala ideální řešení.
Realizace je rychlá, tichá, suchá, bez nepořádku, ekonomičtější a dům má vynikající izolační vlastnosti. Vlastně jsme nenašli žádný argument, proč nejít právě touto cestou. Nechali jsme se inspirovat také životním stylem a mnohaletou zkušeností s dřevostavbami v severských zemích.
Měli jste od začátku představu, jak bude dům vypadat nebo jste nechali návrh čistě na realizační firmě?
Po koupi pozemku, který je na kopci a otevírá se z něj pohled na horizont jsme věděli, že nechceme dům do patra, ale jednopodlažní dům v rovině. Také jsme si přáli velká okna, rovnou střechu, dřevěné prvky, čistý a moderní design, ale nikoliv okázalý. Naším cílem bylo postavit dům, který splyne s okolním prostředím a zároveň bude reflektovat naše potřeby rodiny a náš životní styl. Tomu je přizpůsobený dům (zvenku i uvnitř) i zahrada.
Podle nabídky Lucernu jsme si vybrali jeden z návrhů, který byl označován jako "typový dům". Od toho jsme se odrazili. Vybraný typový dům jsme použili jako referenci, jelikož reflektoval naši představu i styl. Pak jsme ve spolupráci s paní architektkou jen upravovali velikost, dispozice, umístění na pozemku a vždy jsme si nechali poradit. Paní architektka dokonale pochopila naše přání i potřeby a zfinalizovaný návrh byl připravený velmi rychle.
Jak jste přišli na firmu LUCERN a jak probíhala realizace?
Naše první setkání a kontakt s Lucernem (a konkrétně s panem Slavíkem) proběhlo na výstavišti v Letňanech, kde Lucern tehdy prezentoval svou práci. Pamatuji si, jak jsme si domů nesli katalog a už tehdy jsme věděli, že pokud se pustíme do stavby a bude to dřevostavba, bude to právě Lucern. Vynikal nad ostatními firmami vkusem - vkusnými stavbami, které měli ducha, myšlenku, byly moderní, dobře řešené... Troufám si říct, že v nich je určitá nadčasovost. Zároveň jsou ty stavby neokázalé, což je nám sympatické. Jako kdyby z nich čišela pokora. Tohle se těžko popisuje. Prostě to všechno zaklaplo do sebe ve správný čas.
Realizace a spolupráce s Lucernem probíhala na jedničku. Nejvíce jsme oceňovali, že firma absolutně dodržuje termíny. Co se řeklo, to platilo. Pokud stavíte dům, slyšíte ze všech stran, že termíny ani rozpočty se nedodržují... Ne tak v případě Lucernu. Časový harmonogram i rozpočet byly dodržované do puntíku. Tím si u nás Lucern vybudoval důvěru už v průběhu stavby, takže jsme věděli, že se na ně můžeme spolehnout. Cokoliv bylo k dořešení v průběhu realizace, bylo vyřešené ihned. Firma se nám snažila vycházet ve všem vstříct.
Co si na domě nejvíce užíváte a udělali byste nyní něco jinak?
Tento dům je naším domovem už tři roky a za tu dobu jsme nepřišli na nic, co bychom chtěli jinak. Nejintenzivněji si asi užíváme velká okna a průchod na terasu, ve které jsme získali takový outdoorový pokoj navíc. Prostorná terasa se tak stala přirozenou součástí, přechodem i pojítkem mezi domem a zahradou a vytvořil se tak kompaktní fungující celek. Děkujeme za to. Lucern nám postavil dům a my z něj vytvořili domov.
Technické parametry
- Dispozice: 5+kk + terasa a kryté stání + sklad
- Zastavěná plocha: 160 m²
- Užitná plocha: 134 m²
- Technologie: tepelné čerpadlo IVT, podlahové vytápění REHAU
- Projekt a realizace: LUCERN dřevostavby s.r.o., www.lucern.cz





















Vytvořeno v xart.cz