Redakce | Čtvrtek, 04. duben 2024 |
Když poprvé překročili práh realizační firmy Eko modular, měli pozemek a v hlavě hrubou představu, jak by stavba měla vypadat. Nad studií si spolu s projektantkou ujasnili své požadavky, firma pak připravila projekt pro stavební povolení, zařídila jeho akceptaci úřady, zhotovila výrobní dokumentaci, dům vyrobila a na pozemku postavila. Přesně za rok od první schůzky se spokojení majitelé mohli stěhovat.
Dřevostavby obecně jsou jasnou volbou pro ty stavebníky, kteří chtějí svůj záměr realizovat v co nejkratším možném čase. Výstavbu typu two by four, kdy dům vzniká z KVH hranolů, izolace a dalších fragmentů přímo na pozemku, dnes čím dál tím častěji nahrazují dřevostavby, jejichž části (stěny, podlahové či stropní desky nebo krov) se prefabrikují (předpřipraví) ve výrobní hale a na místě se rychle složí dohromady. Dalším stupněm, který je jasnou budoucností nejen rodinného bydlení, je modulová výstavba. Dům dorazí na kamionech v podstatě hotový, rozdělený na transportovatelné kusy, které se pak během několika hodin usadí na své místo. Dokončení takového domu se pak už počítá na dny.
Modulový dům lze snadno přestěhovat z místa na místo. Jaké další výhody přináší?
Ještě větší rychlosti výstavby je možné dosáhnout při použití zemních vrutů, které nahradí betonovou základovou desku, jejíž realizace a následné zrání trvá měsíce. U této stavby se použitím zemních vrutů ušetřily navíc nemalé terénní úpravy, které by u poměrně svažitého pozemku byly při realizaci klasického založení nevyhnutelné. Rozdíl ve výšce terénu byl dokonce tak velký, že bylo nutné ty nejexponovanější vrutová pole zpevnit zavětrovacími tyčemi. Na připravené založení se pak s pomocí jeřábu rychle a jednoduše přikotvily na třech kamionech přivezené dřevěné moduly, včetně zastřešené terasy.
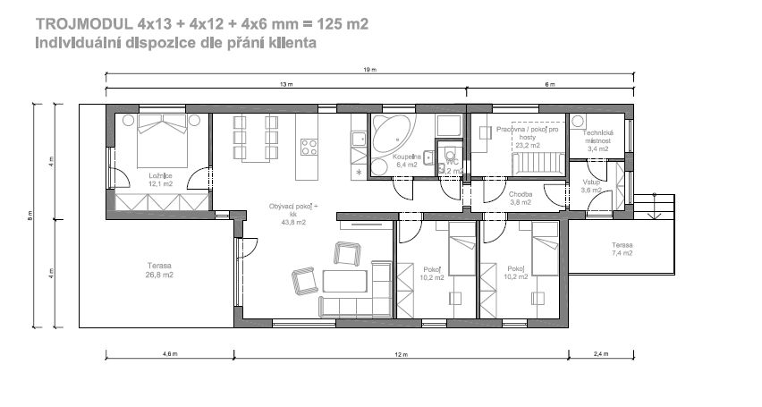
Interiér je zařízen v příjemném skandinávském stylu, s důrazem na přírodní materiály a klidné tóny šedé a bílé. Na sto metrech čtverečních se podařilo vykouzlit praktickou dispozici 5+kk, která kromě hlavního obytného prostoru a tří ložnic disponuje i menším pokojem, který kombinovaně slouží jako pracovna a pokoj pro hosty. Pod taktovkou realizační firmy proběhlo i zařizování koupelny a montáž prostorné kuchyně do tvaru U.
Protože výstavba domu proběhla rychle a bez komplikací, zbylo čtyřčlenné rodině spoustu energie na svépomocné zbudování krásné kaskádovité zahrady, včetně sklípku na skladování ovoce, zeleniny i dobrého vína. Jednoznačnou dominantou prostorné svažité parcely jsou krásné výhledy na okolní panoramata. Realizační firma Eko modular pomohla také s dodávkou zahradního domku.
Technické parametry
- Zastavěná plocha: 125 m2
- Užitná plocha: 102,7 m2
- Dispozice: 5+kk
- Vytápění: elektrické podlahové, doplňkově teplovzdušné
- Konstrukční systém: modulární dřevostavba
- Projekt: 2019, Ing. Gabriela Juřenčáková
- Realizace: 2020
- Dodavatel stavby: Eko modular s.r.o., www.ekomodular.cz
Autor článku: DAGMAR ČESKÁ pro časopis DŘEVO&stavby

Tento článek vyšel v časopisu DŘEVO&stavby 1/2024
Objednejte si krásně vonící výtisk časopisu s kvalitními fotografiemi pouze za 99 Kč
koupit časopis
Nejnovější články v kategorii “Zkušenosti z dřevostavby”
-
Dům za pár týdnů a bez stresu. 10 let v dřevostavbě očima majitele
Dřevostavby jsou stále oblíbenější volbou pro ty, kteří hledají ekologické, rychlé a úsporné bydlení. Jak ale taková stavba probíhá v praxi a jak se v ní žije? O své zkušenosti s…
-
Horský chalet na výsluní aneb návštěva majitelů po deseti letech
Postavit si dům je jako vyplout na lodi z přístavu na širé moře a čekat, co přijde. Každý den určitě nebude dokonalé bezvětří a během plavby vás potká nejeden karambol. Po deseti…
-
Působivý interiér v dřevostavbě Olivera a Ingrid na nás udělal opravdu dojem
Do domu Olivera a Ingrid jste mohli společně s naší redakcí nakouknout v prvním čísle časopisu DŘEVO&stavby roku 2022. Protože na nás jejich interiér zapůsobil, rozhodli jsme se vám ho…
-
Jak se bydlí v modulové dřevostavbě? Zeptali jsme se majitelů
Jaké výhody a nevýhody s sebou přináší bydlení v modulové dřevostavbě? Své o tom ví manželé Juřenčákovi, kteří se podělili o své cenné zkušenosti.

























Vytvořeno v xart.cz