Lucie Němcová | Pondělí, 28. únor 2022 |
Ladně usazený v příkrém svahu, atypický tvarem i řešením, stejně jaké místo, na kterém stojí. Střídmý barevností a štědrý prostorem. Návštěva této vily potěší milovníky přímých a jednoduchých linií, architektonické čistoty a nezaplněného prostoru. Mysl se může zklidnit a oko spočinout třeba na krásném výhledu na místní horu či klášterní kostel. Náhoda? Kdepak. Pečlivě promyšlený scénář, který dal rámec i těm nejmenším detailům v domě.
Žili jsme ve starší řadovce s omezenou stávající dispozicí. Nebyla možnost ji upravit podle našich představ kvůli nosným zdím a nebyla dobře orientovaná vůči světovým stranám. Přáli jsme si postavit bydlení podle vlastních představ.

Vstup: Hlavní vstup do domu a stání pro auta, takzvaný carport, v návrhu potrápily, ale nakonec do sebe vše elegantně zapadlo. Foto: Martin Zeman
Jak jsme přišli k pozemku
Věděli jsme, že nechceme bydlet na vesnici nebo v nějakém satelitu, vybrat vhodný pozemek bylo tudíž velmi složité. Nakonec jsme objevili místo, které splňovalo všechny představy. Jsme stále ve městě, zeleň okolo a překrásný výhled. A navíc se nemusíme dívat do zástavby na další domy.

Foto: Martin Zeman
Dřevostavba ryze pragmaticky
Dřevostavba nebyla jasnou volbou, spíše výsledkem pragmatických úvah. Velmi jsme se obávali výstavby klasického zděného domu, kde centimetr není žádná míra a montážní pěna „vyřeší" všechny problémy. Přáli jsme si precizní provedení a perfektní tepelnou izolaci. Proto jsme dali přednost montované dřevostavbě. Ale opravdu není důvod to, že bychom dřevo preferovali jako materiál, líbí se nám klasická omítka, jaká zdobí i náš „dřevěný" dům.

Foto: Martin Zeman
Čisté linie domu s minimalistickým interiérem
Hodně se nám líbí prosklené plochy a od začátku jsme chtěli čisté linie a co největší obytný prostor s minimalisticky pojatým interiérem. Přesně tak nám dům architekt navrhl. Je atypický podle tvaru pozemku a nádherně kopíruje terén. Není to žádná klasická kostka. Samozřejmě, že náš vkus nevyhovuje všem, občas se nás někdo zeptá, kdy budeme dodělávat podlahy a záclony. Nemohou pochopit, že se nám líbí jednolitá a jednobarevná šedá podlaha namísto klasické dlažby, „plovoučky" nebo marmolea.

Osvětlení: V celém interiéru lze intenzitu osvětlení nastavovat podle přání pomocí funkce stmívání. Svítidla jsou samozřejmě začleněna do inteligentního systému celého domu a tedy ovladatelná pomocí mobilní aplikace. Foto: Martin Zeman
Architekt průvodcem
Na začátku jsme hledali firmu, která nám vybuduje dům na klíč, a během tohoto procesu jsme se seznámili s naším architektem. Připravil studii, která nás doslova nadchla, a celou dobu výstavby nám byl k dispozici v roli poradce. Byli jsme velmi rádi, že pro nás vytvořil i návrh interiéru. Další rozpracování pro stavební povolení a realizaci už bylo v rukou námi vybrané stavební firmy.

Sedací souprava: Barevně neutrální tóny bílých stěn a šedivé podlahy přímo volají po šťavnatém barevném akcentu, který přichází v podobě oranžové sedačky. Foto: Martin Zeman
"Dřevo v interiéru vidět nepotřebujeme, dřevostavbu jsme vybírali z jiných důvodů."
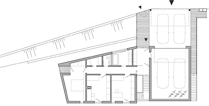
Komentář architekta
Trojúhelníkový pozemek s převýšením přes tři metry byl dlouho na prodej. Pro někoho omezení, pro nás výzva, jak jej zastavět. Vzhledem výraznému svahu musela být dřevostavba zkombinována s klasickou zděnou technologií. Hmota s nebytovými prostory, technickou místností, sklady a fotoateliérem částečně zapuštěná do svahu, je vyzděna. Oproti tomu obytná hmota byla realizována jako difuzně otevřená montovaná dřevostavba. Schodiště vložené mezi hmoty vytváří předěl a zároveň funkční propojení mezi úrovní ulice a zahrady, která je o tři metry níže. Fasády jsou omítnuty bílou, respektive šedou broušenou omítkou imitující beton. Interiér je střídmý, minimalistický, v němž vynikají výrazné solitéry ze dřeva, z dubu, jako schodiště, jídelní stůl a nábytek vyrobený na míru.

Ing. arch. Jan Alex Řezáč
MODULORA
Realizace pomalu, ale jistě
Výstavba trvala zhruba dva roky. Bylo potřeba nejprve vytvořit systém opěrných zdí, tudíž zemní práce spolkly hodně času. Samotná hrubá stavba byla v celém procesu to nejrychlejší. Potom trvalo další rok, než se dokončily všechny práce v interiéru. Dodavatel dřevostavby zhotovil pouze hrubou stavbu, veškeré další dodávky jsme si dojednávali samostatně – zejména okna, podlahy, vytápění a další. Koordinace byla extrémně náročná, ale nakonec s velmi dobrým výsledkem. Předpokládaný rozpočet jsme dodrželi a tímto způsobem jsme ušetřili sumu v řádech statisíců korun. Samozřejmě, dodávka na klíč je jistě pohodlnější.

Výhledy: Okno jako rám pro neustále se proměňující obraz vnějšího světa. Naprosto neoddělitelná součást soudobého moderního interiéru. Foto: Martin Zeman

Schodiště: Dřevěné schodiště je takovou perlou celého obytného prostoru a současně předělem mezi zděnou částí a dřevostavbou. Za pozornost stojí také důmyslně skládaná kresba dřeva na zábradlí i stupních. Foto: Martin Zeman
Komentář majitelů
Trošku jsme se báli, že se dřevostavba v létě rychle ohřeje, ale obava byla zbytečná. Samozřejmě je důležité nezapomenout stáhnout ráno před odchodem žaluzie (případně na dálku, když zapomeneme). Z hlediska nákladů jsme zhruba na polovině částky ve starém domě, který byl plochou podobný. Samotné náklady za vytápění nepřesahují 17 tisíc ročně, což nám v případě tak obrovského domu přijde skvělé. Bydlí se tu více než dobře, jsme spokojeni.

Milena a Lumír
Dům prudce inteligentní
Pokud nový dům, chtěli jsme spoustu technologických vymožeností. Projektu elektro jsme věnovali mnoho měsíců, než jsme se shodli na finálním řešení. Přáli jsme si mít možnost dům ovládat na dálku pomocí mobilní aplikace. V jakoukoliv chvíli tak máme plnou kontrolu nad děním v domě, a to i přes to, že jsme třeba na dovolené. Simulaci přítomnosti obyvatel v prázdném domě považuji za skvělý bezpečnostní prvek. Že si člověk na dálku nastavuje topení, sklon žaluzií a intenzitu osvětlení už dnes vnímám jako samozřejmost.

Nábytek: Zařizovacích předmětů v domě není mnoho, o to jedinečnější kousky zde však najdeme. Dřevěný nábytek z dubové dýhy velmi příjemně kontrastuje s šedobílými tóny interiéru. Foto: Martin Zeman
Odkud se v dřevostavbě bere teplo
O vytápění jsme měli velmi jasné představy. Maximální účinnost, nízké provozní náklady a žádný plyn. Volba tedy padla na tepelné čerpadlo, v našem případě varianta vzduch-voda. V případě provedení se zemním vrtem nám bohužel nikdo nebyl schopen garantovat celkovou výši nákladů. Dále jsme očekávali, že jeden přístroj současně obstará i ventilaci a také jsme nechtěli, aby dům hyzdila nějaká venkovní jednotka „s vrtulí". Tolik požadavků splnil pouze jeden jediný přístroj, ze kterého nepřestáváme být nadšeni.
Celé čerpadlo je schované uvnitř domu a na fasádě je vidět pouze větrací mřížka. Čerpadlo ohřívá užitkovou vodu i vodu do podlahového topení a navíc funguje i jako rekuperační jednotka. Účinnost je fascinující, zejména v kombinaci se skvělou izolací dřevostavby. Když se pak zapálí ještě v krbu, nezbývá než větrat. Krb tak plní funkci hlavně designového doplňku. Na druhou stranu se ale v případě výpadku dodávky elektřiny může postarat o rychlé vytopení domácnosti. Časem můžeme připojit i fotovoltaiku, ale v současnosti nám to ekonomicky nedává smysl.

Krb: Dominanta prostoru pro oko i krásný pocit v zimě. Není však radno zatopit příliš, teplo se šíří velmi rychle a interiér snadno přehřeje. Foto: Martin Zeman
Komentář redaktorky
Tak tady pro změnu plesá mé architektonické já. Luxus velkého volného prostoru, jednoduchosti a elegance stoprocentně doceníte často až ve chvíli, kdy jej zažíváte na vlastní kůži. Nicméně chápu, že tento styl není pro každého a udržet jeho notu i v každodennosti s dětmi, musí být výzva.

Ing. arch. Lucie Němcová
redaktorka
Aby zahrada ladila s dřevostavbou
Zahradou jsme se začali zabývat, až když byl hotový detailní projekt domu včetně interiéru. Chtěli jsme mít vše sladěné, a tak jsme logicky přizvali zahradní architektku. Pozemek jsme rozdělili na obytnou část s bazénem (dominuje trávník) a louku ve svažité části. Nechtěli jsme užitkovou zahradu, ale místo, kde budeme rádi trávit volný čas. Místní zahradnice se již postarala o konkrétní realizaci podle studie. S výsledkem jsme hodně spokojeni. Standardní zahrady s tújemi podél plotu nás děsí stejně jako zmíněná montážní pěna.

Terasa: Modřínové olejované dřevo tvoří terasu kolem domu. Jedno z mála míst, kde dřevo vůbec najdeme. Foto: Martin Zeman
Bazén – bonus od jara do podzimu
Koupací sezónu máme od dubna do října. Voda je ohřívaná samostatným tepelným čerpadlem a upravovaná pouze solí, takže žádný nepříjemný odér chloru. Maximálně ještě doladíme ph vody na začátku sezóny, jinak vodu neupravujeme. Bazén můžeme přiklopit, takže je snazší jej udržovat čistý.

Horní terasa: Nenápadná malá lodžie měla v návrhu svůj význam. Jejím účelem je sloužit jako požitkářský kuřácký koutek s výhledem na klášterní kostel. Častý ostrý západní vítr však nemá s touto báječnou ideou žádné slitování, a tak terasa většinou zeje prázdnotou. Foto: Martin Zeman
Technické parametry
- Typ domu: nízkoenergetický
- Zastavěná plocha: 206,5 m2
- Užitná plocha: 322,8 m2
- Konstrukční systém: montovaná difuzně otevřená dřevostavba
- Teplo a větrání: vytápění tepelným čerpadlem Stiebel Eltron vzduch-voda s integrovanou venkovní jednotkou (v té době to byl jediný výrobek na trhu), větrání centrální s rekuperací, inteligentní elektroinstalace
- Součinitel prostupu tepla stěnou: 0,16 W/m2K
- Projekt elektro: iNELS s.r.o.
- Projekt domu a návrh interiéru: Ing. arch. Jan Řezáč, MODULORA, 2015
Nejnovější články v kategorii “Návštěvy dřevostaveb”
-
Jednoduchá, účelná a moderní chalupa v pasivním standardu
Krkonoše, naše nejvyšší hory, mě lákají, ale málokdy se tam dostanu. Dnes mě ale horská silnice dovede až k Žacléři – na nejvýchodnější cíp Krkonoš nedaleko hranic s Polskem.…
-
Apartmány s vůní dřeva
Když dědeček Soně a jejímu bratrovi odkázal v jihočeském Políkně kamenné stavení na krásném místě, sourozenci se rychle dohodli, že by mohlo, po rozsáhlejší rekonstrukci, sloužit…
-
Takhle to dopadne, když máte dům ve vlastních rukou
Andrej s Denisou původně pochází z podhůří Tater, po studiích se ale oba rozhodli zůstat v Česku. V pomyslném souboji mezi Brnem a Prahou nakonec zvítězila metropole, ale když čekali…
-
V dřevostavbě v Louňovicích se bydlení mění v zážitek
Když vám prozradím, že se v patře této dřevostavby v Louňovicích mimo jiné nachází i showroom, kde Pavel předvádí svým zákazníkům systém Loxone, jistě vás nepřekvapí, že je…

















Vytvořeno v xart.cz