Dana Jakoubková | Pátek, 30. prosinec 2022 |
Čirý génius dovede udělat umění z čehokoliv. Michelangelo by dokázal sochu i z bláta a Jane Austenová román z čaje. Paní tohoto domu mi předvedla něco, co neumím dost přesně specifikovat. Souvisí to ale nějak s tím velkým spočinutím mysli, o kterém mluvíme, když jsme šťastni jen proto, že žijeme. Vždycky jsem měla pocit, že rodinný kód je srozumitelný právě a jenom členům rodiny. Jenže tady rezonoval celým domem, vracel se z koutů, seděl na dně šálku mého kafe, byl v letmém pohybu obočí, kterým výtvarnice Marie mírnila neposedné děti. I tehdy, když jsme dospěly ke konci rozhovoru, měla jsem pořád jaksi dojem, že je ten příběh nekonečný.
Nějakou dobu jsem si lámala hlavu nad tím, co vlastně tvořilo onu těžko sdělitelnou domáckost. Dům je totiž velice jednoduše členěný, s docela prostornými místnostmi, málo zastavěnými nábytkem. Je vlastně maximálně praktický, i když dispozičně vzhůru nohama. Člověk ale musí dát dosavadní zkušenost do závorky, aby nad touhle obyčejností mohl žasnout.
V nejhořejším patře je pak vděčný za to, že tu závorku udělal. Tam totiž nemůže propadnout malomyslnosti, ani kdyby bylo týden zataženo. Ostatně jak řekl Jan Werich: „Není šedivých dnů. To jsou jen unavené oči, které nechtějí vidět jejich svátečnost." Prostě tady nahoře je člověk nejenom okouzlen, ale má pocit, že sám dokáže kouzlit a okouzlovat.
To pravé místo
Majitelé vsadili téměř vše, včetně výběru pozemku, na jednu osobu – architekta. Žili totiž trvale ve Varšavě a sami neměli možnost se aktivně na hledání podílet. Pátrali tak jenom v inzerátech na internetu a vybrané tipy dali architektovi ke zhodnocení. On se zajel na pozemek podívat a dal jim zpětnou vazbu, proč do toho nejít. Trvalo docela dlouho, než se naskytla parcela kousek od Berounky. Když ji i architekt vyhodnotil jako vhodnou, přijeli se na ni Marie a Pavlem osobně podívat.
„Hned jsme věděli, že tohle je to místo, kde chceme být," vzpomíná Marie. „To pravé místo, do toho se totiž musíte zamilovat. Ono na vás čeká, jenom to nesmíte uspěchat a vzít něco, co je zrovna po ruce, protože tam nebudete šťastni, není to vaše místo. To své si musíte vyčekat." Nyní, když dům stojí, není těžké vnímat pozitiva parcely. Ale klobouk dolů přes fantazií všech, co v zarostlé nudli ve tvaru hokejky viděli budoucnost. Úzký a značně svažitý pozemek, byť orientovaný jižně, totiž příliš možností nenabízel.
Dobrá volba
„Architekt nám předložil několik návrhů domu s tím, že zde by šel do dřevostavby," vzpomíná Marie. „Moc jsme o tom nevěděli, vlastně obecně se ještě před těmi čtyřmi lety dřevu moc nevěřilo a my se neměli čeho chytit. Naše rozhodnutí zpečetil až váš časopis, kde jsme hledali inspiraci a informace."
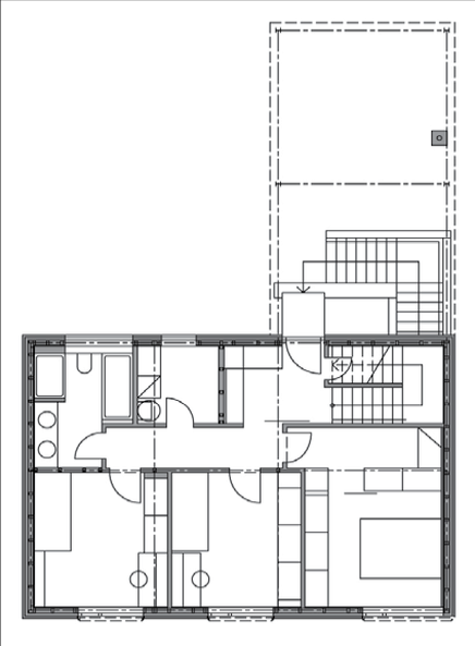
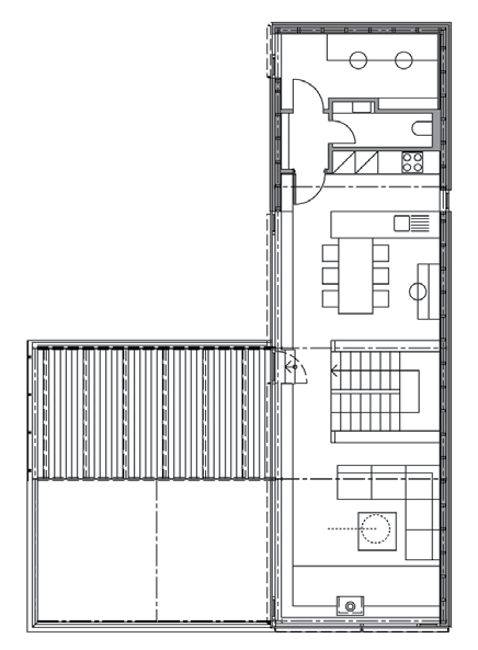
I když byl mezi návrhy i přízemní dům, rozhodli se majitelé pro dvoupodlažní bydlení, které spočívá na otevřeném, železobetonovém soklu zapuštěném do svahu. V soklu, který je vlastně prvním podlažím, je umístěno parkování pro dvě osobní vozidla a venkovní úložný prostor. Podlaží ložnic v prvním nadzemním podlaží je tvořeno hranolem rovnoběžným s vrstevnicemi svahu, a na něm spočívá druhé podlaží s hlavním obytným & prostorem, podélnou osou kolmé ke svahu.
Vzájemným pootočením obou hranolů o devadesát stupňů vznikla střešní terasa jako součást tělesa druhého patra, které tak vytváří i krytý prostor pro venkovní schodiště domovního vstupu. Vnitřní schodiště pak začíná na úrovni ložnic, respektive prvního patra a ústí uprostřed obytného prostoru nejvyššího podlaží s kuchyní a jídelnou na jedné straně a sezením na straně druhé.
„Dnes si tuto volbu nemůžeme vynachválit," pochvaluje si Marie. „Obytná zóna je prakticky na roveň korunám borovic u hranice pozemku a z obýváku i terasy tak máme fantastický výhled. Mám pocit, že náš dům je takto mezi všemi živly. Za zády máme skálu, vidíme na Berounku, krbový oheň je na jihu a všude kolem dřevo. Mám pocit, že tady je všechno tak akorát."
Otázky na architekta
Co byste na tomto projektu ocenil nejvíce?
Odvahu, kterou majitelé projevili při výběru pozemku. Místo jako takové mělo své kouzlo, ale pozemek byl na první pohled komplikovaný svým tvarem a svažitostí. Všechno bylo jinak než u tradiční parcely pro rodinný dům. Stejnou nebo ještě větší odvahu projevili i ve vztahu k architektovi. Mít volnou ruku je ale samozřejmě především obrovský závazek a spokojený zákazník je odměna, která se musí odpracovat.
Z čeho vycházela dispozice vzhůru nohama?
Vzhledem ke svažitosti pozemku bylo od začátku jasné, že bez schodů se pohyb po domě neobejde. Další úvahy pak jen logicky směřovaly k řešení, které uchopilo danou situaci jako příležitost k tomu bezproblémově zaparkovat a dostat se od auta do domu suchou nohou, příležitost užít si výhled do údolí Berounky a také příležitost mít k obytnému prostoru i navazující venkovní prostor a současně vnímat prostor zahrady za domem.
Plocha oken 50 m2 je poměrně značná. Nemá pouhé dvojsklo negativní dopad na tepelnou bilanci objektu?
Celková plocha prosklení je o trochu více než třetina podlahové plochy bytu. Dvojskla mají obecně tu výhodu, že méně „žerou" světlo. Zvolili jsme takový typ dvojskla, který také dobře propouští tepelné záření směrem do interiéru. Slunce vám tak na jaře, na podzim a některé dny i v zimě ušetří spoustu energie na vytápění. Nezbytností je pochopitelně účinné venkovní zastínění, v tomto případě horizontálními žaluziemi.

Ing. Jakub Roskovec
SCHAUFLER-ROSKOVEC, s.r.o.
Technické parametry
- Typ domu: nízkoenergetický
- Zastavěná plocha: 125 m2
- Užitná plocha: 134 m2
- Konstrukční systém: 1. PP železobetonový monolit + ocelová konstrukce, 1. NP a 2. NP dřevostavba
- Teplo: zdroj – tepelné čerpadlo vzduch-voda DAIKIN
- Větrání: přirozené okny
- Součinitel prostupu tepla stěnou: U = 0,228 W/m2K
- Roční náklady na energie: cca 20 000 Kč / rok
- Autor projektu a realizace: Ing. Jakub Roskovec / SCHAUFLER-ROSKOVEC, s.r.o., www.schaufler-roskovec.cz, 2014
Nejnovější články v kategorii “Návštěvy dřevostaveb”
-
Zrcadlová roubenka na soutoku
Majitel této roubenky – říkejme mu třeba Martin – měl jasný cíl: postavit svým dospělým dětem dům, kam by mohly o víkendech jezdit a být mu tak i s vnoučaty nablízku. A aby to…
-
Dřevěný domov v krajině rozlehlých luk
Tento příběh připomíná dokonalou pohádku o tom, kterak Kateřina a Jiří našli svůj vytoužený klid v podhůří Krkonoš. Jejich pozemek o rozloze dvaceti tisíc metrů čtverečních je…
-
Dávno splněný sen v podobě patrové dřevostavby na míru
Některé plány a nápady potřebují čas, aby mohly uzrát. Hluboko zapustit kořeny a trpělivě čekat na tu správnou dobu. Jako v tomto případě – poprvé totiž Milan na „svou"…
-
Dřevěná vila schoulená v náručí krajiny
Každý dům nevyhnutelně mění krajinu – jakým způsobem, to už záleží na jeho majitelích. Některé stavby přetvářejí okolí podle svého obrazu, jiné se naopak snaží splynout. A…















.jpg)
.jpg)
.jpg)
.jpg)
.jpg)
.jpg)
.jpg)
.jpg)
.jpg)
.jpg)
.jpg)
.jpg)
.jpg)
.png)
.png)
Vytvořeno v xart.cz