Redakce | Čtvrtek, 28. březen 2024 |
Probouzet se do cvrlikání ptáků, s pohledem do korun zelených stromů. Opustit alespoň na víkend ruch města a načerpat novou životní energii. Být více v kontaktu s přírodou. V domě, který její majestátnosti vzdává pokorně hold, přitom ale má i svou duši. Tak by se dal popsat dnes už do puntíku splněný sen Petra a Katky, kteří nás k sobě pozvali na návštěvu.
Petr s Katkou žijí v Praze a kvůli práci na tom zatím nechtějí nic měnit. I když se jim líbí život v přírodě, daleko od města, nejsou ochotní každý den trávit hodiny v dopravních zácpách. Jednou, až nebudou potřebovat být v práci každý den, plánují se odstěhovat na venkov natrvalo. Zatím zvolili kompromis – od pondělí do pátku bydlí v bytě ve městě, na víkendy a volné dny jezdí do svého dřevěného domku vzdáleného čtyřicet minut jízdy autem od jejich bytu.
Pozemek na ně čekal 15 let
Původně pár plánoval koupi už existující chaty nebo chalupy, ale nepodařilo se jim najít nic, co by splňovalo jejich představu. Po pár měsících hledání se rozhodli, že jednodušší bude si ji postavit. To ale netušili, že najít vhodný pozemek je zhruba stejně složité. Objeli pár nevyhovujících parcel, když si Katka vzpomněla, že kdysi dávno Petrovi jeden jeho bývalý kolega ukazoval větší soubor pozemků východně od Prahy.
„Před 15 lety mě sem můj bývalý kolega vzal, aby mi místo ukázal. Vůbec mě to tady ale nezaujalo, protože pozemky byly zarostlé, nepřehledné a hlavně nezasíťované. Když si na ně Kačka vzpomněla, musel jsem uznat, že bych se na ně dnes už díval úplně jinýma očima, protože potenciál tam v každém případě byl. Přišlo mi ale nereálné, že by po takové době byly stále ještě volné. Přesto jsem zvedl telefon a slavil jsem úspěch. A to doslova za pět minul dvanáct," vypráví Petr.
„Když jsme sem přišli, zůstali jsme stát s otevřenou pusou, protože před námi bylo přesně to, co jsme celou tu dobu hledali," dodává Katka. Pozemky byly už zasíťované, rozparcelované a připravené k prodeji. Pár si vybral krásnou parcelu přímo nad řekou, s parádním výhledem do okolní krajiny.
Architekt uspěl už s prvním návrhem
Výběr firmy, příprava projektu a samotná stavba pak už šly jako po másle. Katka s Petrem mají společný vkus a perfektně si rozuměli i s architektem z realizační firmy, kterou si vybrali. Pro dřevostavbu se rozhodli okamžitě, protože jim to pro bydlení v přírodě připadalo jako mnohem vhodnější varianta než stavba zděná. Navíc v době, kdy začínali stavbu plánovat, to stále ještě byla levnější alternativa. S realizační firmou si sedli okamžitě, stačila jen jedna návštěva.
Líbil se jim jejich přístup k projektu a zaujal je i systém masivních dřevěných CLT panelů, který jim firma ke stavbě doporučila. Přestože prvotní Petrovou a Katčinou představou byl malý domek do L, když přijel na jejich pozemek architekt a začal jim vykládat svoji vizi jednoduchého obdélníkového domu v přední části otevřeného směrem k řece, s lehce sešikmenou střechou i stěnou, byli hned nadšení.
Už první návrh, který architekt zpracoval ve 3D a Katka s Petrem měli možnost se po něm s pomocí 3D brýlí projít a nakouknout do všech místností, jim zcela vyhovoval a v podstatě na něm nepotřebovali nic měnit. Nakonec k jedné změně přeci jen došlo, stavba se z důvodu optimalizace ceny – protože v průběhu přípravy projektu došlo k výraznému zdražování materiálů – zmenšila o jednu místnost.
Slovo architekta
Když Petr s Katkou přišli do 3AE s tím, že by od nás chtěli navrhnout víkendovou chatu, popravdě jsem se bál, jak asi bude vypadat pozemek v chatové oblasti. Ale když jsem poprvé navštívil parcelu nad řekou, okamžitě jsem cítil, že se mi naskýtá jedinečná příležitost. Příroda zde byla tak majestátní, že jsem chtěl navrhnout dům, který by s ní byl v harmonii, ale zároveň by vyjadřoval osobitost svých majitelů.
Samotné navrhování šlo hladce, hlavně proto, že jsme si s Petrem a Katkou sedli lidsky a měli jsme podobný pohled na věc. Snažil jsem se z pozemku vytěžit maximum, především se vše točilo kolem krásného výhledu směrem k Sázavě. Cílem bylo vytvořit prostor, který by byl pro oba útočištěm, místem, kde by mohli odpočívat od ruchu Prahy. Inspirací byl jejich životní styl a touha po spojení s přírodou. Proto jsem zvolil jednoduchý obdélníkový tvar s výraznou sešikmenou stěnou, která otevírá dům do krajiny a zároveň ho dynamicky zasazuje do okolního prostředí. Tento prvek, ač na první pohled možná trochu provokativní, ve skutečnosti podporuje pocit otevřenosti a spojení s okolím.
Konstrukce z masivních dřevěných panelů NOVATOP byla zvolena kvůli její ekologičnosti a přirozenému spojení s přírodním prostředím. Interiér domu je navržen tak, aby byl jednoduchý, ale funkční, s dominujícím obývacím pokojem s prosklenou stěnou, která poskytuje dechberoucí výhledy a spojuje vnitřní prostor s exteriérem. Pro mě bylo velkým potěšením pracovat na tomto projektu s klienty, kteří byli otevření a plní inspirativních nápadů. Výsledný dům je dokonalým odrazem jejich snů a touhy po životě blízko přírody, kam se budou rádi vracet a kde budou nabírat síly.

Ing. arch. Lukáš Pejsar
3AE, s.r.o.
Na sešikmenou stěnu si majitelé museli chvilku zvykat
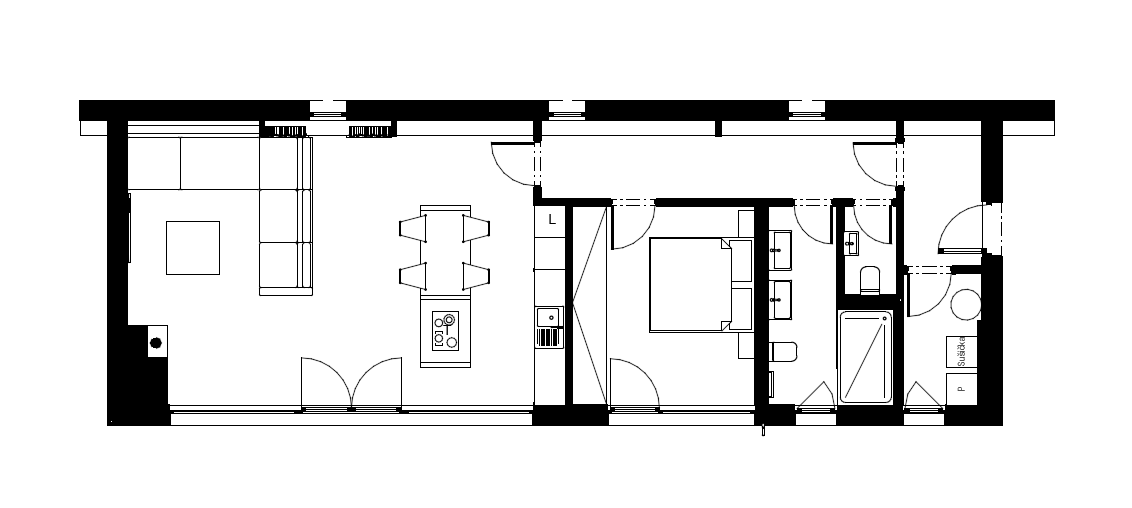
Dům má velmi jednoduchý půdorys obdélníkového tvaru, na kterém ale na první pohled zaujme sešikmená zadní stěna. Ta se rozevírá směrem od podlahy ke stropu a dodává tak chodbě a obývacímu pokoji na prostoru. Netradiční řešení zaujme na první pohled, stavbu ozvláštní a místnosti díky němu působí otevřeněji a prostorněji. Přesto majitelé přiznávají, že si na pocit, který šikmá stěna v interiéru navozuje, museli chvíli zvykat.
Jednotlivé pokoje jsou pak poskládány v řadě za sebou. Z chodby se vchází do technické místnosti, vedle níž se nachází samostatný záchod a za ním koupelna s velkým sprchovým koutem. Pak už následuje ložnice a prostorný obývací pokoj s kuchyní. Obývák má stěnu směrem k řece celou prosklenou, a jelikož dům stojí na kopci, disponuje tím pádem neuvěřitelnými výhledy do krajiny. Pultová střecha se zvedá směrem k řece a výhled tak opticky ještě více rozevírá.
Všechny místnosti jsou vkusně vybaveny dřevěným nábytkem s kovovými prvky, které pro pár vyrobil známý truhlář. „My s ním spolupracujeme už spoustu let. Jeho koníčkem je zpracování železa, a to dokázal propojit s truhlařinou. Dělá nádherné kousky nábytku právě v kombinaci dřeva a železa. Máme od něj celou kuchyni, stůl, židle a další menší kusy nábytku," vysvětluje Katka. Některé věci si při stavbě dokázali udělat i sami. Petr spolu s kamarádem postavil terasu, sám obložil stěnu kolem krbu a kuchyně cihlovými pásky a společně s Katkou zase vymalovali celý dům včetně stropu.
Podlahové topení si zapnou už v Praze
V obývacím pokoji je krb na dřevo, který ale majitelé využívají spíše jako kulisu. Dům je nejčastěji vytápěn pomocí elektrického podlahového topení, které si můžou dálkově zapnout už ve čtvrtek večer a v pátek tak dorazí do krásně vyhřáté chaty. Oba si také chválí kvalitu stavby, která je perfektně tepelně izolovaná. V zimě dobře drží teplo, v létě naopak chládek.
„Dům je hodně prosklený a také máme nekrytou terasu, takže jsme se báli, že nám tady bude v létě vedro. Ale ukázalo se, že stěny dokážou udržet příjemnou teplotu po celý den, samozřejmě i díky žaluziím, které stačí jen trochu pootočit a nedostane se sem žádné slunce," chválí si Petr. Oba trochu mrzí, že se při stavbě rozhodli nedělat nad terasou zastřešení, protože pak by se dala využívat i za deště.
Perfektní parta lidí v sousedství
Život ve svém novém domku si Katka s Petrem opravdu užívají. „Měli jsme obrovské štěstí na lidi. Jsme tady všichni podobného věku a tím, že pozemky byly nové, jsme stavěli v podstatě zároveň. Díky tomu jsme se sblížili a vytvořili si tu fajn partu lidí," chválí si Katka. Se svými sousedy dělají různé akce, jezdí na vodu, chodí se koupat do Sázavy nebo v zimě chodí na plesy. Právě dobré sousedy, absolutní klid uprostřed přírody a blízkost řeky považují za největší přidanou hodnotu nového bydlení.
Zahradu mají spíše bezúdržbovou, pár rybízů a angreštů a zbytek tráva. Časem by rádi v rohu pozemku vybudovali venkovní kuchyni, kde by grilovali s přáteli. Katka by si také přála malý bazén, který by plynule navazoval na terasu, ale to je spíš plán do vzdálenější budoucnosti.

Tato dřevostavba soutěží v anketě DŘEVOSTAVBA ROKU 2024
Pomozte nám zvolit nejhezčí dřevostavby! Tato dřevostavba se uchází o váš hlas v anketě Dřevostavba roku 2024 pod názvem "Skromný extrovert". Hlasujte do 26.3. 2024 v tomto kole a získejte atraktivní ceny...
Hlasovat v anketě
Technické parametry
- Typ domu: nízkoenergetický
- Zastavěná plocha: 98,39 m²
- Užitná plocha: 77 m²
- Dispozice: 2+kk
- Konstrukční systém: masivní dřevěný panel NOVATOP SOLID, difuzně otevřená konstrukce
- Zdroj energie / vytápění: elektrické podlahové topení, krbová vložka
- Větrání: přirozené okny
- Součinitel prostupu tepla stěnou: U = 0,17 W/m²K
- Autor arch. návrhu: Ing. arch. Lukáš Pejsar
- Autor projektu: Libor Švehla, DiS.
- Realizace stavby: 2022, 3AE s.r.o., www.3ae.cz
Autor článku: Eva Zupančič pro časopis DŘEVO&stavby

Tento článek vyšel v časopisu DŘEVO&stavby 1/2024
Objednejte si krásně vonící výtisk časopisu s kvalitními fotografiemi pouze za 99 Kč
koupit časopis
Nejnovější články v kategorii “Návštěvy dřevostaveb”
-
Apartmány s vůní dřeva
Když dědeček Soně a jejímu bratrovi odkázal v jihočeském Políkně kamenné stavení na krásném místě, sourozenci se rychle dohodli, že by mohlo, po rozsáhlejší rekonstrukci, sloužit…
-
Takhle to dopadne, když máte dům ve vlastních rukou
Andrej s Denisou původně pochází z podhůří Tater, po studiích se ale oba rozhodli zůstat v Česku. V pomyslném souboji mezi Brnem a Prahou nakonec zvítězila metropole, ale když čekali…
-
V dřevostavbě v Louňovicích se bydlení mění v zážitek
Když vám prozradím, že se v patře této dřevostavby v Louňovicích mimo jiné nachází i showroom, kde Pavel předvádí svým zákazníkům systém Loxone, jistě vás nepřekvapí, že je…
-
Tradiční roubenka s příběhem návratu domů
Navigace mě posílala do lesa, ale Josefova roubenka mi už od cesty naznačovala, abych odbočila na polní cestu. Kolem dokola jen louky a stromy, nebýt hájovny opodál, stála by tu jako…



























Vytvořeno v xart.cz