Redakce | Pátek, 12. duben 2024 |
Malebná krajina jižních Čech ubíhá za oknem auta a čím víc se blížím svému cíli, malému městečku poblíž Tábora, tím je idyličtější. Zvlněné louky střídají smíšené lesy a krajina působí uklidňujícím dojmem. Tady bych také dokázala bydlet, říkám si, a vůbec se nedivím, že si Jakub s Alenou ke svému bydlení vybrali z celé republiky právě tohle místo.
Mladý pár se seznámil už na vysoké škole, a jelikož jsou každý z jiného konce republiky a na návratu domů ani jeden netrval, začali si po studiích hledat ideální místo, kde se usadí a časem si postaví svůj vysněný domov. Jejich povolání jim výběr lokality velmi usnadnilo, protože nepotřebují dojíždět do většího města. Když jim kamarádka zmínila, že kolem Tábora je moc krásná krajina, rozhodli se hledat práci a bydlení právě tam. Stačila jedna cesta a do místní přírody se zamilovali. „Zastavili jsme nahoře na kopcích a tam byl takový klid, že jsme si okamžitě řekli, že tady chceme zůstat. Byli jsme doslova uhranuti tím tichem a pohodou," směje se Jakub.
Stavební povolení zdržela příjezdová cesta
Nastěhovali se sice do bytu, od začátku ale věděli, že chtějí žít v rodinném domě. Hledání pozemku nebylo vůbec jednoduché, a tak trvalo pár let, než se jim podařilo koupit ten pravý. Stojí na kopci téměř na samotě a původně k němu nevedla ani příjezdová cesta. Právě neexistence zpevněné cesty se ukázala jako velký problém při získávání stavebního povolení a vyjednávání o jejím pořízení zdrželo začátek stavby téměř o rok. Nakonec museli manželé celou cestu od silnice až ke svému pozemku zpevnit a vysypat štěrkem. Se stavebním povolením jim naštěstí hodně pomohla realizační firma, která od začátku do konce vše vyřídila.
Samotný dům byl během roku kompletně postavený a při jeho stavbě se už neobjevil žádný zádrhel. „S panem Javorským jsme se potkali v ordinaci, jsem totiž zubař, začali si povídat o našich plánech a názorově jsme si okamžitě sedli. Celá spolupráce poté probíhala bez problémů a ve vzájemné shodě. Navrhli nám dobrou cenu, vše za nás vyřídili a stavbu zrealizovali přesně podle plánu," popisuje spolupráci Jakub. I když si původně přál srub z kulatiny, postupně se s Alenou shodli na roubence, která je podle jejich názoru praktičtější. Cedrové dřevo zvolili především kvůli jeho bezúdržbovosti. Nemusí se natírat ani jinak udržovat a majitelům se tak investice do něj rychle vrátí.
Zděný krb, na kterém se můžete vyhřívat
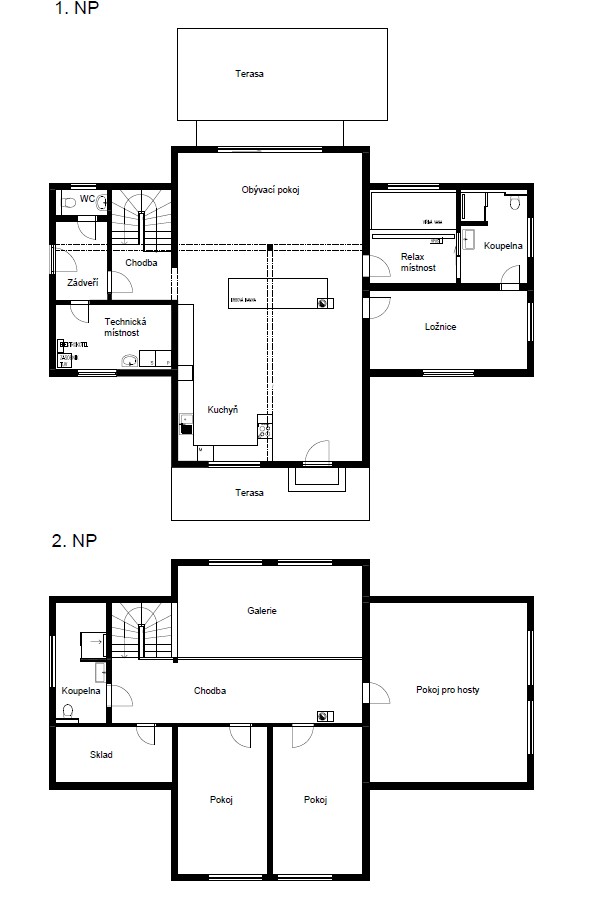
Za stavební firmou přišli už s hotovým projektem, který jim navrhl zkušený architekt. Manželé měli několik základních požadavků, kolem kterých architekt svůj projekt vystavěl: „Především jsme chtěli dole velký otevřený prostor. Také jsme si přáli, aby všechno důležité bylo situováno do přízemí, abychom nemuseli, až se děti odstěhují, nahoru vůbec chodit," vysvětluje Alena. Řešením je jednopatrový dům s velkým obývacím pokojem v přízemí.
Obývák má jednu celou prosklenou stěnu poskytující výhled do zahrady a otevřený strop do horního patra, což prostor opticky ještě zvětšuje. Kuchyň s jídelnou odděluje od obývacího pokoje oboustranný zděný krb na dřevo, na který si Alena s oběma dětmi za chladných dnů ráda vyleze a vyhřívá se na něm. Bílá kuchyně byla vyrobena ze dvou starých javorů které stály na pozemku a majitelé je museli pokácet. Dřevo odvezli na pilu a poté ke kamarádovi truhláři, který vyrobil kuchyni na míru. Zbylo i na jídelní stůl a dveře do ložnice.
Ložnice je také, spolu s koupelnou, záchodem a technickou místností, součástí přízemí. Horní patro je určeno dětem a hostům. Z galerie plné pokojových květin se vchází do velkorysého pokoje pro hosty. Ten se nachází v podkroví s krásnými výhledy do okolní krajiny a podle slov majitele je to nejpříjemnější pokoj – celý orientovaný na sever, takže je v něm neustále stabilní klima. Syn i dcera mají v patře každý svůj samostatný pokoj. Na galerii je také malý čtenářský koutek pro chvíle klidu a pohody s knížkou.
Slovo dodavatele
Manželé Jakub a Alena měli od začátku poměrně jasnou představu o tom, co chtějí. Snili o unikátní velké roubence, která by se stala jejich novým domovem. Rádi jsme si vzali vizi tradiční dřevostavby s praktickými moderními interiéry za svou a hledali jen taková řešení, která do ní dokonale zapadala. Díky tomu jsme se vždy rychle a bezproblémově domluvili i na nejmenších maličkostech. Mám velkou radost, že jsou s domem spokojeni a že jsme zůstali v kontaktu i po jeho dokončení.

Ing. David Javorský
TABOR sruby-roubenky
Rustikálnímu interiéru dominují vyřezávané dekorace
Zařízení interiéru je v rustikálním stylu a krásně ladí s dřevěnými stěnami roubenky. Většinu nábytku manželé buď nakoupili v bazaru, nebo si vyrobili sami s kamarádem truhlářem. Na výrobu využili jak pokácené jasany, tak vadné cedrové trámy ze stavby, které realizační firma nemohla použít. Dřevěná kuchyně je natřená na bílo a na dvířkách jsou nakreslené kytičky z dílny Aleniny babičky. Babička nejen krásně kreslí, ale také vyřezává ze dřeva. Její nádherné výrobky jsou vystaveny po celém domě a pomáhají vytvářet atmosféru propojení s přírodou.
Alena rodinný talent (vyřezával už pradědeček) zdědila, a tak je jedna z místností v domě určená pro budoucí vyřezávací dílnu. Útulnou atmosféru v interiéru pomáhají vytvářet i důmyslně umístěná a vybraná světla. „Najít vhodné osvětlení byl opravdu oříšek. Vybírali jsme je v době covidu a nikam nás nechtěli pustit. Naštěstí jsme zajeli do Čimelic, k de se nám opravdu věnovali. Přijeli k nám domů, všechno si prohlédli, poslechli si naši představu a za pár dní nám nabídli kompletní řešení osvětlení celého domu. Světla pak i nainstalovali. Naštěstí jsme při stavbě nechali udělat spoustu vývodů, takže jsme si mohli dovolit hodně světel na vhodných místech," vysvětluje Jakub.
Zeleninu i ovoce si vypěstují sami
Rozlehlý lehce svažitý pozemek má téměř 5000 m2, takže si manželé pořídili několik oveček, které jim pomáhají spásat trávu. Alena má moc ráda zvířata, kromě ovcí jsou na zahradě ještě králíci a dva psi, v budoucnu by majitelka ráda měla i nějakého koně. Zahradu navrhoval architekt a vytvořila zahradní firma. Kromě keřů a květin jsou na pozemku i zeleninové záhony plné rajčat, cuket, mrkve a další zeleniny.
Nechybí ani skleník na choulostivější druhy zeleniny jako jsou okurky a papriky. Mezi keři rostou jahody či borůvky. Uprostřed zahrady je krásné koupací jezírko s terasou, u něhož stojí velká sauna. Saunu si Jakub s Alenou postavili sami, doslova od pokácení dřeva až po poslední hřebík. Jakub má ve sklepě domu vlastní dílnu, není pro něj tedy problém leccos do domu či na zahradu vyrobit. V blízké budoucnosti na zahradě vyroste ještě dlážděná krytá terasa určená k posezení a grilování s přáteli.
Díky zkušenostem se vyvarovali chyb
Alena i Jakub jsou s bydlením v roubence moc spokojení. „I když jsem původně z Jakubova nápadu pořídit si klasický srub nebyla nadšená, roubenka mi opravdu vyhovuje a dnes si vůbec už nedovedu představit bydlení ve zděné stavbě. Dřevo pořád dýchá a vytváří úplně jinou atmosféru než cihla," říká Alena. Moc věcí by na svém domě neměnili.
Díky tomu, že s architektem a realizační firmou vše hodně diskutovali a nechali si poradit, a také díky svým předchozím zkušenostem se zařizováním bytů, se žádných větších chyb nedopustili. Jediné, co by dnes udělali jinak, je topení v koupelně. Ta je vyhřívaná podlahovým topením, které ale není napojeno na krb, takže se po zatopení v krbu vypíná a v koupelně není dostatečné teplo.

Tato dřevostavba soutěží v anketě DŘEVOSTAVBA ROKU 2024
Pomozte nám zvolit nejhezčí dřevostavby! Tato cedrová roubenka se uchází o váš hlas v anketě Dřevostavba roku 2024 pod názvem "Srdcová záležitost". Hlasujte do 16.4. 2024 v tomto kole a získejte atraktivní ceny...
Hlasovat v anketě
Technické parametry
- Zastavěná plocha: 173 m2
 - Užitná plocha: 310 m2
 - Dispozice: 5+kk
 - Konstrukční systém: celoroubené stěny ze západního červeného cedru
 - Střecha: pohledový krov s nadkrokevní izolací, střešní krytina Bramac
 - Okna: dřevěná, s izolačním trojsklem
 - Zdroj tepla: kamna, podlahové vytápění
 - Větrání: přirozené okny
 - Projekt a realizace: 2020, TABOR sruby · roubenky, www.tabor-wood.cz
 
Autor článku: Eva Zupančič pro časopis sruby&ROUBENKY

Tento článek vyšel v časopisu sruby&ROUBENKY 1/2024
Objednejte si krásně vonící výtisk časopisu s kvalitními fotografiemi pouze za 85 Kč
koupit časopis
Vaše komentáře (0)
Nejnovější články v kategorii “Návštěvy dřevostaveb”
- 
												
										
Jednoduchá, účelná a moderní chalupa v pasivním standardu
Krkonoše, naše nejvyšší hory, mě lákají, ale málokdy se tam dostanu. Dnes mě ale horská silnice dovede až k Žacléři – na nejvýchodnější cíp Krkonoš nedaleko hranic s Polskem.…
 - 
												
										
Apartmány s vůní dřeva
Když dědeček Soně a jejímu bratrovi odkázal v jihočeském Políkně kamenné stavení na krásném místě, sourozenci se rychle dohodli, že by mohlo, po rozsáhlejší rekonstrukci, sloužit…
 - 
												
										
Takhle to dopadne, když máte dům ve vlastních rukou
Andrej s Denisou původně pochází z podhůří Tater, po studiích se ale oba rozhodli zůstat v Česku. V pomyslném souboji mezi Brnem a Prahou nakonec zvítězila metropole, ale když čekali…
 - 
												
										
V dřevostavbě v Louňovicích se bydlení mění v zážitek
Když vám prozradím, že se v patře této dřevostavby v Louňovicích mimo jiné nachází i showroom, kde Pavel předvádí svým zákazníkům systém Loxone, jistě vás nepřekvapí, že je…
 







								







				














							
							
							
							
							
Vytvořeno v xart.cz