Markéta Kristová | Pátek, 01. červenec 2022 |
Stačil by vám dům v rozměrech garsonky? Máte ho mít, stačit vám bude jeden modul. Plánujete založit rodinu? Prostě jen časem přidáte další moduly. Jednotlivé varianty je totiž možné alternativně měnit i po dokončení stavby.
Modulární architektura už dávno není spojována pouze s extravagantními domy nebo výstavními pavilony. Dávno pryč je i unifikovaný vzhled přepravního kontejneru. Bydlení v modulu dnes může být stejně tak obyčejné jako luxusní. Nezanedbatelným bonusem je jeho strukturální celistvost, krátká doba výstavby, vynikající tepelněizolační vlastnosti a celková ekologičnost stavby. A bydlet můžete prakticky okamžitě. Jde to skoro stejně rychle, jako šlo postavit dům z kultovní stavebnice Lego.
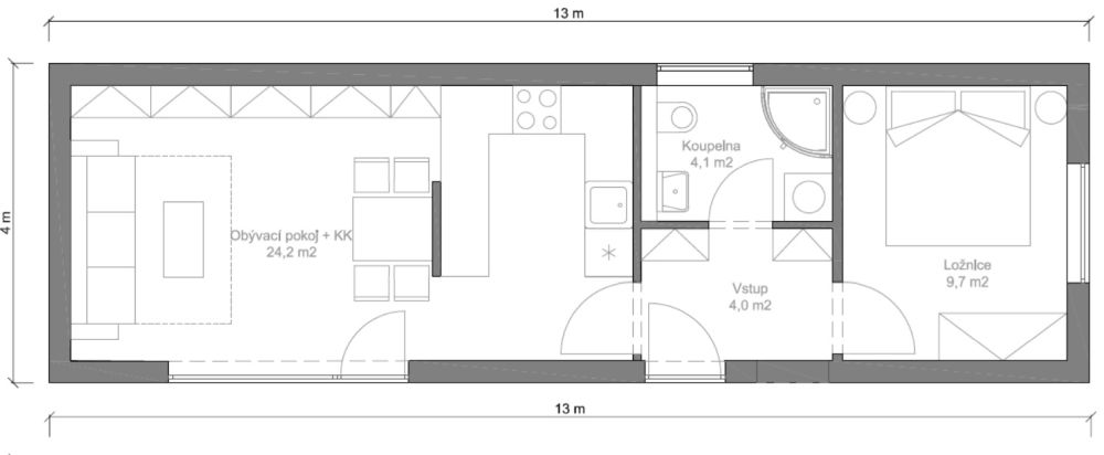
1M – modulární dřevostavba tak akorát velká
- Tato modulová dřevostavba je určena pro plnohodnotné bydlení 2-3 osob.
 - Vstup spojuje ložnici, koupelnu a obývací pokoj s jídelním koutem a kuchyní. Z obývacího pokoje lze vytvořit druhý samostatný pokoj. Prostorná ložnice sousedí s koupelnou, která svými rozměry postačí celé rodině.
 - Důležitou součástí domu je také zádveří, díky kterému nebudete do bytu nosit nečistoty z bot a návštěva si bude mít kde odložit kabáty.
 
- Dispozice: 2 + kk
 - Zastavěná plocha: 52 m2
 - Užitná plocha: 42 m2
 - Orientační cena na klíč včetně DPH: 1 753 000 Kč
 - Cena včetně základové desky: NE
 
Realizace a zdroj: ÚSPORNÉ BYDLENÍ s.r.o.
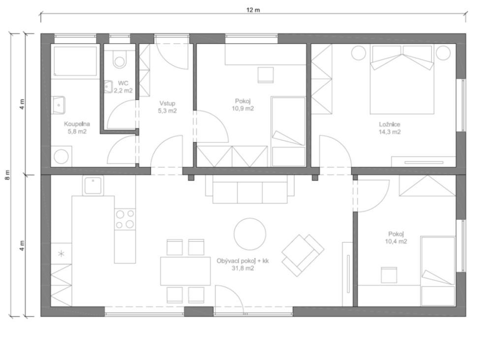
2M – modulární dřevostavba s bohatým prostorem
- Dva jednomoduly postavené vedle sebe, vychází ze základního rozměru 4×10 nebo 4×12.
 - Velký obývací pokoj s kuchyňským koutem, dvě nebo až tři ložnice, koupelna s oddělenou toaletou.
 
- Dispozice: 3 + kk
 - Zastavěná plocha: 96 m2
 - Užitná plocha: 81 m2
 - Orientační cena na klíč včetně DPH: 3 225 000 Kč
 - Cena včetně základové desky: NE
 
Realizace a zdroj: ÚSPORNÉ BYDLENÍ s.r.o.
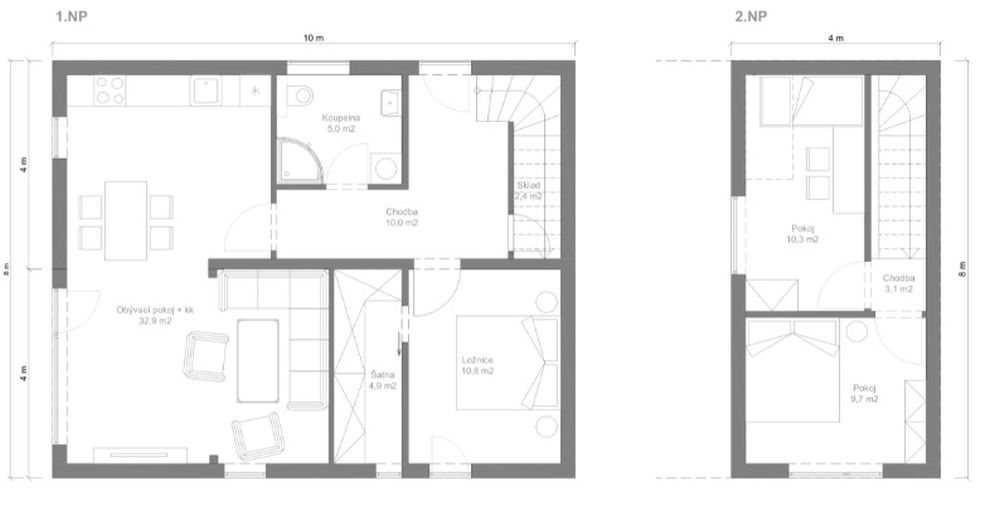
3M2 – patrová modulární dřevostavba
- První podlaží tvořeno dvěma moduly o rozměrech 4×10 m, nachází se zde obývací pokoj s kuchyní, koupelna, ložnice se šatnou a schodiště.
 - Druhé podlaží tvoří modul 4×8 m, kde se nachází dva pokoje.
 
- Dispozice: 4 + kk
 - Zastavěná plocha: 80 m2
 - Užitná plocha: 89 m2
 - Orientační cena na klíč včetně DPH: 3 629 000 Kč
 - Cena včetně základové desky: NE
 
Realizace a zdroj: ÚSPORNÉ BYDLENÍ s.r.o.
Úsporné bydlení s.r.o. – pasivní a modulární dřevostavby
Výstavba certifikovaných modulárních rodinných, rekreačních a bytových domů, občanské vybavenosti (školky, kanceláře, fitcentra, restaurace apod.) v běžném, nízkoenergetickém a pasivním standardu v provedení od hrubé stavby až po stavbu na klíč. Úporné bydlení je česká výrobní a stavební společnost s dlouholetou tradicí. V inovacích patří mezi jedničky.

- KONSTRUKČNÍ SYSTÉM: Modulární systém výstavby. Nadstavba běžně užívaného panelového systému. Dům je jako celek vyroben ve výrobní hale, což zaručuje vyšší kontrolu a tím i kvalitu konečné dodávky. Výstavba (montáž) na místě staveniště trvá od dvou hodin u jednomodulární stavby po dva až tři dny u vícemodulových staveb. Výhodou je minimální znečištění a omezení provozu v místě stavby.
 - VZOROVÉ DŘEVOSTAVBY: Dubňany, ul. Hornická 1760, tel.: +420 776 216 768, Dubňany, ul. Trávníky 1730, tel.: +420 608 380 107, Hodonín, ul. Pánov 3185, tel: +420 774 618 283, Hustopeče, ul. Akátová 11, tel: +420 724 420 084, Vizovice, Říčanská 1354, tel: +420 722 966 750
 - ZÁRUKA KVALITY: Společnost dlouhodobě aktivně spolupracuje se sdružením Centra pasivního domu. Technická kvalita staveb je dokládána příslušnými certifikáty hlavních konstrukcí. Jako jediní v ČR ve spolupráci s ČVUT, VUT Brno, MZLU a Univerzitou Zvolen měřili 12 druhů difuzně otevřených i uzavřených konstrukcí. Podíleli se na vývoji modulárních dřevostaveb v programu TA ČR.
 - PŮSOBNOST: Modulární stavby po celé ČR a EU, panelové stavby na klíč jen Jihomoravský kraj.
 - SÍDLO FIRMY: Nádražní 1000, 696 03 Dubňany, +420 608 380 100, Tato emailová adresa je chráněna před spamboty, abyste ji viděli, povolte JavaScript , www.uspornebydleni.cz
 - Ukázka již realizovaných dřevostaveb
 







								






.jpg)
.jpg)
%20půdorys.jpg)
.jpg)
%20půdorys.jpg)
.jpg)
%20půdorysy.jpg)

							
							
							
							
							
Vytvořeno v xart.cz