Dana Jakoubková | Pátek, 13. leden 2023 |
Trvanlivost, užitek a jednoduchost. Slova, která vracejí zpátky ozvěnu funkcionalismu, byla prvními, která přišla Antonínovi a Janě na mysl, když přemýšleli o podobě svého domu. Jak říká oblíbená mantra moderny začátku dvacátého století, forma následuje funkci. A této ideji je dům materiálově i hmotově velmi poplatný.
Ovlivnily vás nějak mýty, které se kolem dřevostaveb točí, například že shoří, shnije, sežere ji brouk...?
O dřevostavbách jsme zpočátku nevěděli nic. To je samo sebou pro mýtus živná půda. Informace jsme získávali postupně, a čím více jsme jich měli, tím ubývalo obav, až zmizely úplně. Zásadní pro nás byla rychlost výstavby a požadavek na její kvalitu. Chtěli jsme se vyhnout neustálým opravám. Samozřejmě byly důležité i náklady na realizaci, ekonomičnost provozu domu a pokud možno co nejdelší „bezúdržbový provoz". Dřevostavba nám připadala, a po zkušenosti s bydlením v ní stále připadá, příznivější i po zdravotní stránce.
Měli jste o domě jasnou představu, nebo vznikaly třecí plochy?
Jako asi u většiny stavebníků, naše představa se sice vyvíjela, ale měli jsme se ženou stejné naladění. Hodně času jsme trávili „okukováním" různých realizovaných domů, studiem časopisů a prospektů, návštěvami odborných výstav. Zásadním momentem byl „rozchod" s prvním architektem, kde bohužel nedošlo ke shodě s jeho a našimi představami. Bylo to bolestivé, ale nutné.
Došli jsme k názoru, že základ interiéru si musíme navrhnout sami, protože my v tom budeme bydlet a chceme to mít podle našich představ. Zbytek ať doladí, a nás případně usměrní, odborníci. Se základní grafickou podobou nám pomohl kamarádův software a my si tehdy uvědomili, že inklinujeme k funkcionalismu. Ideálně jsme se chtěli přiblížit Müllerově vile.
Řešili jste nějaký oříšek, ať už projektový nebo stavební?
Člověk má tendenci pořád něco řešit. Po zkušenosti se stavbou však doporučuji rozhodovat se rychle a nevracet se pořád zpět a něco vylepšovat, leštit. Hodně nám pomáhalo dělat písemný zápis z jednání jak se stavební firmou a architektem, tak s technickým dozorem. Co je psáno, to je dáno, a devadesát procent úspěchu je příprava.
Zmiňoval jste nějaký problém s pozemkem...
Ano, měli jsme to složitější, proto bych rád budoucím stavebníkům sdělil pár svých postřehů. Doporučuji ověřit si, zda nevázne na pozemku a příjezdové komunikaci nějaké ale. Příkladně zda je pozemek správně zaměřen a zda není na příjezdové komunikaci „flíček" pozemku, který budete muset následně draze koupit. Posun plotu totiž vyjde dost draho.
Pak je vhodné ověřit, zda je vstup na parcelu bez závazků, informujte se na sousedy; potížisté vás potrápí. Důležité je aby parcela byla přístupná pro stavební techniku – vyšší jeřáb rovná se vyšší cena, a následně zda nebude prostorově problematický vjezd do garáže nebo přístřešku pro auta. A také ověřte, zda není skrytě zpoplatněno připojení na sítě.
Co se vám nepovedlo?
S ohledem na rozsah stavby toho bylo velmi málo. Nemáme ideálně situovaný vjezd na pozemek. Pak litujeme, že jsme objednali jenom jednu retenční nádrž na dešťovou vodu. Upotřebili bychom dvě, ideálně uzpůsobené i k využití vody třeba na splachování. Co se týká funkčnosti domu, ne zcela dotažené je vytápění vzduchem. Ne že by to firma nedokončila. Jde jen o to, že jsme asi vzduch jako medium přecenili.
Podle čeho jste vybírali dodavatele dřevostavby?
Dobrá firma stejně jako architekt se hledají velmi obtížně. Nám se první architekt nepovedl a dodavatele stavby jsme proto vybrali na základě doporučení. Nepodceňujte smlouvu a nešetřete na ní. Jasně musí být definován rozsah, cena a termíny dodávky, a samozřejmě vyrovnané sankce pro obě strany. Důležitý je vztah dodavatele k vyřizování reklamací, zda je vstřícný, nebo má sklony „nechat problémy vyhnít pod rohožkou".
Vyjednejte si prodloužení reklamačních lhůt, zvažte využití pozastavení plateb, důležitým bodem je servis – termín nástupu pracovníků po oznámení problému a garance náhradních dílů pod sankcemi. My jsme měli seriózního dodavatele a můžeme jej doporučit dalším stavebníkům. Byl velmi pozitivní a vstřícný. Od podpisu už jsme smlouvu nemuseli vytáhnout. Přesto doporučujeme nepodceňovat technický dozor investora. I ten jsme si najali na základě doporučení. Jeho přítomnost na stavbě a kontrola byla přínosem pro všechny zúčastněné strany.
Komentář dodavatele
Chtěla bych poděkovat za možnost realizovat tuto stavbu. Baví nás pracovat s klienty, kteří vědí, co od domu chtějí, a tomu podřizují parametry stavby. V tomto případě je výsledkem prostorný, velmi vzdušný dům se specifickými architektonickými detaily, které odrážejí individuální potřeby, představy a přání investora. Konkrétně je to velký důraz na dostatek místa, množství vestavěných úložných prostorů, posuvné interiérové dveře zvyšující variabilitu obytných částí domu nebo nenásilné propojení interiéru domu se zahradou.

Ing. Martina Kozelková
Origis, s.r.o.
Jak si stojí váš pasivní dům se spotřebou energie?
Na elektřinu u nás jede vše a za loňský rok jsme platili 27 600 Kč, což je zhruba 65–70 procent spotřeby bytu 3+1 při třech lidech v paneláku. Plánujeme, že časem přidáme solární zdroj energie pro ohřev užitkové vody. Stávající kapacita není pro nás tři dostatečná.
Co byste poradili lidem, kteří zvažují dřevostavbu?
Nelitujte času na studium literatury, katalogů a webových stránek dodavatelů dřevostaveb či na návštěvu výstav doma i v zahraničí. Informace ale přijímejte s nadhledem. Poučte se od těch, kteří mají výstavbu již za sebou. Vybírejte architekta, se kterým si porozumíte a který garantuje jednotnou linku domu. Doporučuji zvážit co nejvíce vestavěných úložných prostorů a šaten, je to velice příjemné, včetně těch v technické místnosti.
Jako dobrou alternativu vidím i krb. V přechodných obdobích přináší značné úspory na vytápění. Hlavně v zimě při výpadku elektřiny nezmrzneme. Za samozřejmost považuji perfektní izolaci domu, což náš dům plně splňuje, až překračuje. Buďte nároční k sobě i k dodavatelům, ale nepřehánějte to. Pokud to jen trochu jde, zaměřte se na úsporu provozních nákladů a ne jen na levné půjčky. O všem rozhoduje „ostrá tužka". Investiční náklady musí mít ale reálnou návratnost.
Kdybyste měli stavět znovu, změnili nebo zohlednili byste něco?
S domem jsme velmi spokojeni. Nepovedlo se sice úplně vše, a protože pokrok letí vpřed, asi bychom něco dnes řešili jinak. Například až po nastěhování jsme zjistili, že voda v lokalitě je dost tvrdá. Musíme nyní řešit její úpravu, aby nedocházelo k poškození topných spirál elektrických spotřebičů a zanášení rozvodů teplé vody. Doporučujeme řešit toto v předstihu. Celkově je ale důležité, aby problém nebyl nevratný a měl řešení. Zatím jsme u nás ani v zahraničí v této kategorii na nic lepšího nenarazili.
Komentář redaktorky
Zmíněná Müllerova vila v pražských Střešovicích (1928–30) představuje vrcholné dílo světové architektonické avantgardy. Vizionář Adolf Loos v ní maximálně rozvinul své originální pojetí prostoru takzvaný raumplan, který lze přirovnat k trojrozměrné šachovnici. Nenajdete tu klasické dělení domu na patra a obytné zóny, ale místnosti v různých úrovních i různě vysoké, propojené schůdky a průchody, křižované průhledy od jednoho k druhému, prostory spíše tušené než patrné; prostě dům jako spousta malých překvapení. Vila je veřejně přístupnou Národní kulturní památkou a za její rekonstrukci získalo Muzeum hlavního města Prahy cenu Europa nostra. Dům Antonína a Jany je k funkcionalismu mnohem blíže a už zvenčí máte představu, jak je asi uvnitř uspořádaný. Podobnost s Müllerovou vilou lze vidět v kubickém tvaru i strohém charakteru bílé fasády a hlavně v přesvědčení, že to, co vidí kolemjdoucí, není podstatné jako to, jak se žije obyvatelům uvnitř. Je mi sympatické, že aktuální trend téměř neznatelného přechodu interiéru do exteriéru není prvoplánový a že si majitelé dokázali udržet soukromí.

Dana Jakoubková
redaktorka
Technické parametry
- Typ domu: pasivní
- Dotace: Nová Zelená úsporám
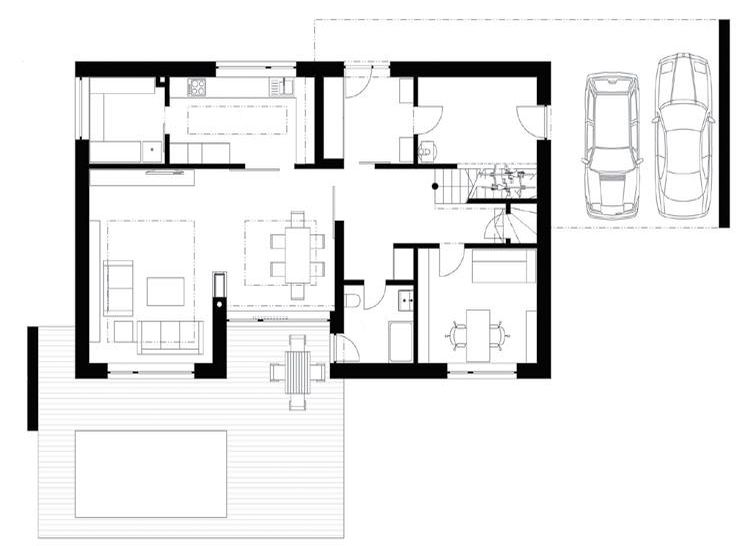
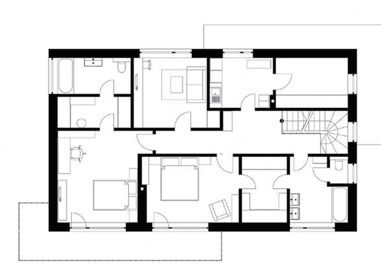
- Zastavěná plocha: 140 m2
- Užitná plocha: 224 m2
- Konstrukční systém: panelová konstrukce
- Teplo: teplovzdušné – tepelné čerpadlo vzduch-vzduch
- Větrání: řízené s rekuperací tepla
- Součinitel prostupu tepla stěnou: 0,133 W/m2K
- Autor projektu: Ing. Lenka Bidermanová
- Realizace: Origis s.r.o., www.origis.cz
Nejnovější články v kategorii “Návštěvy dřevostaveb”
-
Apartmány s vůní dřeva
Když dědeček Soně a jejímu bratrovi odkázal v jihočeském Políkně kamenné stavení na krásném místě, sourozenci se rychle dohodli, že by mohlo, po rozsáhlejší rekonstrukci, sloužit…
-
Takhle to dopadne, když máte dům ve vlastních rukou
Andrej s Denisou původně pochází z podhůří Tater, po studiích se ale oba rozhodli zůstat v Česku. V pomyslném souboji mezi Brnem a Prahou nakonec zvítězila metropole, ale když čekali…
-
V dřevostavbě v Louňovicích se bydlení mění v zážitek
Když vám prozradím, že se v patře této dřevostavby v Louňovicích mimo jiné nachází i showroom, kde Pavel předvádí svým zákazníkům systém Loxone, jistě vás nepřekvapí, že je…
-
Tradiční roubenka s příběhem návratu domů
Navigace mě posílala do lesa, ale Josefova roubenka mi už od cesty naznačovala, abych odbočila na polní cestu. Kolem dokola jen louky a stromy, nebýt hájovny opodál, stála by tu jako…













.jpg)
.jpg)
.jpg)
.jpg)
.jpg)
.jpg)
.jpg)
.jpg)
.jpg)
.jpg)
.jpg)
.jpg)
Vytvořeno v xart.cz