Markéta Kristová | Pátek, 02. únor 2024 |
Zbrusu nový vzorový dům v Čakově vám 17. února umožní si na vlastní kůži vyzkoušet jaké to je bydlet v pasivním, ale především moderně střiženém domě našlapaném chytrými technologiemi. Dopřejte si testovací jízdu v pasivním domě a poznejte jeho kvality.
Vzorový dům v Čakově disponuje dvěma apartmány, menším a větším, které mohou být pronajímány samostatně i jako celek. Splývá s okolím, vyzařuje jednoduchost, a přesto se pyšní promyšleností až do posledního detailu. Je prošpikován různými čidly a senzory díky instalované technologii pro chytrou domácnost, která dbá nejen na uživatelský komfort, ale i bezpečí a efektivní využívání energií.
Současně umožňuje detailní analýzu provozních dat i nákladů. Díky těmto informacím přesně víte, jaká je v domě hladina CO2, teplota, nebo zda nízká vlhkost nevysušuje vaše sliznice, které mají za následek vyšší náchylnost k nemoci. Pomocí jednoho dotykového tlačítka, nebo aplikace na chytrém telefonu, můžete ovládat v každé místnosti žaluzie, osvětlení, hudbu, teplotu nebo kontrolovat zabezpečení, případně přidělit přístupový kód do domu pro návštěvy, které si dům přijedou prohlédnout, nebo rovnou vyzkoušet. Zajímavostí je i systém Senzomatic kontrolující úniky vody a vlhkost, například při poškození odpadního potrubí nebo pračky.
„Velmi dlouho v nás zrála myšlenka postavit si vzorový dům. Chtěli jsme mít možnost klientům naživo ukázat kvalitu naší práce, materiály a technologie, se kterými pracujeme, ale taky konkrétní lidi, kteří se pod jejich dům podepisují. Zároveň jsme jim chtěli nabídnout možnost vyzkoušet si bydlení v dřevostavbě, kde je dřevo i jeho vůně neustále přítomno. Když se naskytla příležitost koupit parcelu nedaleko Prahy, v malé klidné vesničce Čakov, bylo rozhodnuto. Tady se vše spojilo v jeden celek a vzniklo místo testování i setkávání s klienty i partnery. Dům se stal naší „srdcovkou", říká architekt Lukáš Pejsar ze společnosti 3AE, autor návrhu domu.
Masivní dřevostavba není jen roubenka či srub
Vzorový dům byl otevřen v listopadu 2023 a hostům nabízí odpovědi na celou řadu otázek, které bydlení v rodinném domě doprovází, a to nejen v pasivním. Ti, kteří přišli na den otevřených dveří anebo v něm už strávili pár dní, hodnotí dům velmi pozitivně – oceňují otevřený prostor, řemeslné provedení, čerstvý vzduch, vyrovnané klima v celém domě nebo velké prosklené plochy, které dům prosvětlují a zároveň propojují se zahradou.
Pozornosti návštěvníků neunikly ani dominující dřevěné plochy v interiéru, tvořící zároveň nosnou konstrukci domu. Touto technologií se vyznačuje většina návrhů z pera Lukáše Pejsara, protože si práci s českými panely NOVATOP oblíbil. Na stavbu totiž přijíždí CLT panely přesně opracované na CNC strojích a celodřevěná masivní konstrukce se z nich poskládá během několika dnů. Hrubá stavba je tak brzy bezpečně uzavřená a výrazně se tím omezuje pronikání vlhkosti do její konstrukce v případě nepříznivého počasí. Zároveň je celá obálka stavby vzduchotěsná, což je jeden z klíčových parametrů pro pasivní domy, navíc bez foliových parozábran, a tedy difuzně otevřená.
Ale tím největším benefitem NOVATOPu, který jako architekt oceňuje, je možnost ponechat CLT panely v interiéru přiznané a pracovat s nimi i v rámci dalších interiérových prvků, jako jsou dveře či nábytek, interiér díky tomu působí jednotně a útulně. Ale není to podmínka nechávat viditelné smrkové dřevo, rozhodnutí je na klientech, i v tomto domě si mohou osahat různé možnosti obkladů a zkonzultovat jejich výhody a nevýhody. Nedílnou součástí návrhu bylo i řešení prostorové akustiky, na kterou se myslelo od samého počátku. Zvuk se zde nerozléhá, nevzniká echo, svou roli v tom sehrávají i dřevěné akustické panely, tvořící zároveň moderní designový prvek.
Mohlo by vás zajímat
Komentář návštěvníka
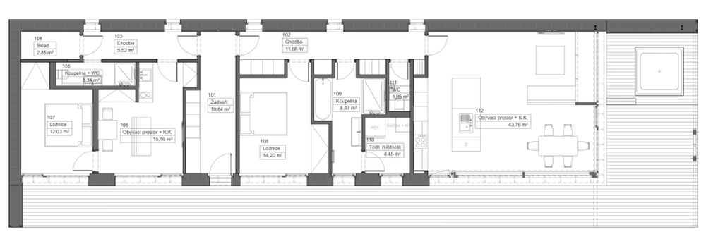
V levé části domu je malý apartmán se samostatným obyvákem, ložnicí a koupelnou s WC. Toto dělení domu umožňuje flexibilně reagovat na požadavky návštěvníků. Dům tak může obývat rodina s dětmi, nebo starší pár s vnoučaty anebo dva na sobě nezávislé páry, skupinky či rodiny. Společná je pouze vstupní chodba.
Zelené okolí je ideální pro dřevostavbu
Když se podíváte velkými okny ven, uvidíte za velkoryse krytou terasou zahradu, která se v průběhu roku 2024 promění v bezúdržbovou s vlastním zavlažovacím systémem. Dům se zahradou tak časem sroste v jeden celek a zajistí větší soukromí. Do tohoto přírodního konceptu zapadá i zelená střecha, která navíc brání letnímu přehřívání domu a efektivně hospodaří s dešťovou vodou, svedenou do akumulační nádrže, zajišťující dostatek užitkové vody.
Za zmínku stojí i její izolace proti vodě. Ta je tvořena ethylen-propylen-dienovou kaučukovou fólií, která má výbornou stabilitu proti stárnutí a degradaci a dobré mechanické vlastnosti. Poprvé byl materiál použit v roce 1967 na střechu restaurace na letišti v Chicagu. Od té doby se prokázalo, že jeho standardní životnost je více než 50 let. Zelená střecha pak jeho životnost ještě prodlužuje.
V případě potřeby ji bude možné osadit fotovoltaickými panely pro budoucí zefektivnění chodu domácnosti a přerodu domu ve stavbu, která dokáže vyprodukovat více energie, než spotřebuje. (Mimochodem, že takové řešení není vůbec těžké, dokázal i architekt Lukáš Pejsar na svém vlastním domě – viz ročenka Pasivní domy 2023.)
Přijeďte v únoru na návštěvu nebo se ubytujte přes víkend
Vzorový dům v Čakově funguje primárně jako showroom, kterým vás odborníci z týmu 3AE po dohodě provedou a vysvětlí vám všechny technologie a detaily. V sobotu 17. února od 10:00 se koná v Čakově Den otevřených dveří do této dřevostavby a vy tak budete mít jedinečnou příležitost dům navštívit a poznat jeho kvality.
Obrovskou přidanou hodnotou je možnost si dům vyzkoušet na vlastní kůži. Ubytujte se třeba na víkend, klikejte, otvírejte a zkoušejte vše, co je v domě k dispozici. Cílem je ukázat na různorodost materiálů a technologií, která se promítne do finálního konceptu a ceny každého domu.
Velký apartmán je vybaven nákladněji, materiály jsou dražší, jako porovnání k němu slouží apartmán malý, kde má klient možnost osahat si levnější materiálová řešení. Jako bonus si během pobytu můžete dopřát procházku krásným okolím, projet se na kole nebo navštívit některou z pamětihodností v okolí. Nabízí se například výlet na nedalekou rozhlednu Špulka, zámek Konopiště, hrad Český Šternberk, klášter v Sázavě nebo výlet na horu Blaník.
Technické parametry
- Zastavěná plocha: 199 m2
- Užitná plocha: 134 m2
- Dispozice: 2 × 2+kk
- Konstrukční systém: základová deska s pasy, masivní panely z křížem lepeného dřeva NOVATOP
- Měrná potřeba tepla: 19 kWh/m2a
- Součinitel prostupu tepla stěnou: 0,107 W/m2K
- Okna: dřevo-hliníková okna s trojskly, výrobce Značková okna
- Vytápění/větrání: kompaktní jednotka Pichler PKOM4 pro větrání, vytápění, chlazení i přípravu teplé vody
- Další vybavení: moderní technologie s inteligentním řízením Loxone; Moisture Guard Senzomatic pro komplexní kontrolu vlhkosti v celém domě architektonický
- Návrh: Ing. arch. Lukáš Pejsar
- Projekt a realizace: 3AE s.r.o., www.3ae.cz, 2023
Nejnovější články v kategorii “Aktuálně”
-
Studentská soutěž Stavby s vůní dřeva zná své vítěze!
Studentská soutěž Stavby s vůní dřeva má za sebou úspěšný 12. ročník, poprvé však za spoluorganizace Fakulty lesnické a dřevařské České zemědělské univerzity v Praze a…
-
DEN LESŮ NOVÉ GENERACE 2025 se vydařil!
Dne 18. října ožily lesy na několika místech České republiky dětským smíchem i vůní grilované zvěřiny. U Hradce Králové, Tábora a Brna se totiž konal Den lesů nové generace –…
-
Městských lesů s FSC certifikátem přibývá. Nový seriál ukáže proč
Jde to i bez holin! FSC ČR spouští šestidílný videoseriál Lesy jinak, ve kterém profesionální lesníci z městských a církevních lesů ukazují, jak vytvářet zdravé a pestré lesy bez…
-
Český pavilon na EXPO 2025 si připisuje už čtvrté prestižní ocenění!
Český pavilon na světové výstavě EXPO 2025 v Ósace získal Stříbrnou cenu Mezinárodního úřadu pro výstavnictví (BIE) za architekturu v kategorii malých a středně velkých pavilonů…



























Vytvořeno v xart.cz